
文章图片

文章图片

文章图片

文章图片

文章图片

文章图片

文章图片

文章图片

文章图片

文章图片

文章图片
我们很多人都会知道“轻装修重装饰”这句话 , 但是往往很多人在装修的时候往往都会忽略了 。 根据很多屋主入住后的经验得出来:越是简单的效果越是耐看 。 所以 , 还没装修或者正在打算装修的朋友 , 这样的经验要值得学习与参考!
大家可以看看屋主他家这套仅有72平小三房 , 属于比较紧凑型的户型了 。 室内面积湖大 , 加上也不喜欢把家里装修过于复杂 , 所以与家人商量决定之后 , 全屋无吊顶 , 可以节省很多开支 , 而且楼层层高给人的感觉 , 没有那么矮的感觉 , 更不会让人觉得压抑 , 真的太舒适啦!忍不住给大家分享一下 , 希望能给大家带来好的装修灵感!
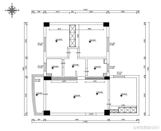
这是原始户型图 , 属于比较典型的户型布局了 。 户型唯一不好的地方 , 其中次卧靠近餐厅 , 而且没有玄关 , 同时两个小孩房空间 , 一个卫生间而已 。 但是对于紧凑型的户型来说 , 也能满足最基本的生活需求了!
这是变动之后的家具平面布置图 , 相信大家都能看出来哈 。 其实变动不是很大 , 仅仅是利用过道的位置 , 把厨房空间增大了 , 同时两个小孩房的空间也可以得到更好利用起来 。
紧凑型的户型 , 利用门口一边的位置 , 也就是靠近餐厅区 , 设计了一个上下两层顶天立地的鞋柜 , 这样设计 , 可以满足家人需求的鞋柜 , 可以提供蛮不错的储物空间 。 对于户型没有玄关 , 而刚好空间足够的话 , 这样设计师比较合理的哈!
餐厅空间不大 , 布置了一张可变的餐桌 , 也就是可以根据用餐人数 , 不管是选择方形还是圆形 , 都非常合适 , 没有任何影响 。 一般来说 , 这样的餐厅就比较灵活使用了 。 一家人坐在一起用餐 , 觉得很幸福 , 虽然小户型的房子 , 面积不大 , 但是不影响哈!
特别声明:本站内容均来自网友提供或互联网,仅供参考,请勿用于商业和其他非法用途。如果侵犯了您的权益请与我们联系,我们将在24小时内删除。
