跳跃在黑白键中的理想生活,用柴米油盐敲响乐章,去享受每一天

文章图片

文章图片

文章图片

文章图片

文章图片

文章图片

文章图片

文章图片

文章图片

文章图片

文章图片
黑色从来给人沉闷的高冷的感觉 , 其实只要搭配得当黑色也能充满活力和青春气息 , 也能赋予空间和生活更别致的魅力 。 因为业主喜欢成熟的空间 , 不喜欢过于复杂的装修元素 , 所以设计师以清冷的黑色作为切入点 , 为业主烘托出一个理性又干练的家居环境 。
跳跃在黑白键中的理想生活 , 用柴米油盐敲响乐章 , 去享受每一天
房屋户型:两室
房屋面积:98平方米
装修预算:30万
所在城市:北京
主要建材:铁件、石材、人造石、系统柜、木作、油漆、玻璃、仿清水模漆
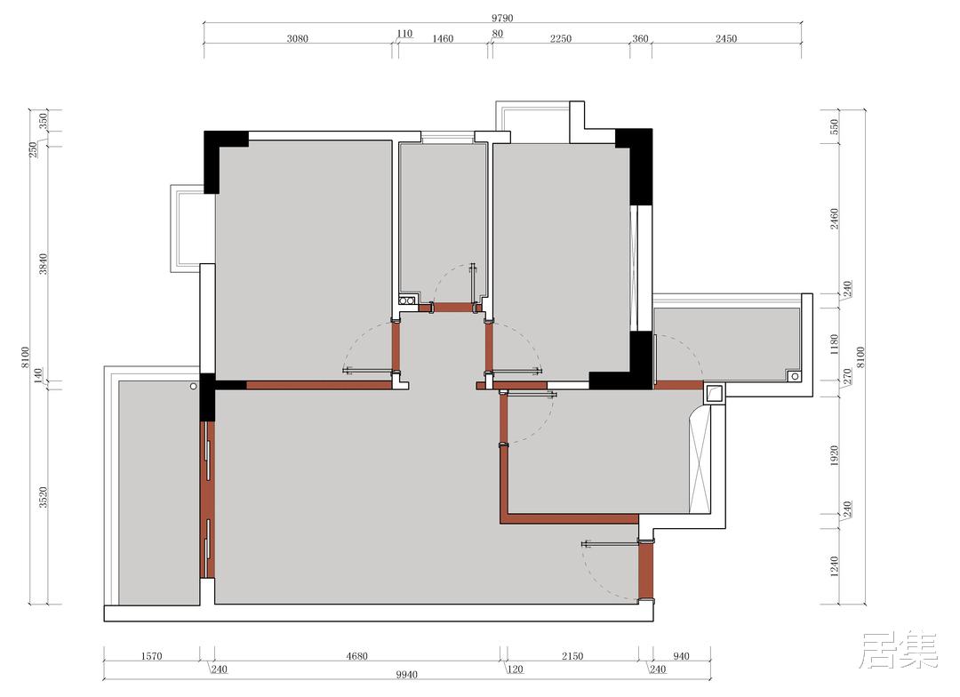
【户型图】
一:把原始比较小的电视背景墙打造成兼具隐形门的墙体 , 既提升了观影体验也让空间彼此独立 。
二:卫生间干湿区之间并没有独立 。 改造之后设计师将洗手台进行了移动 , 调整空间的布局 , 让局促狭小的卫生间变得更加宽敞 。
三:打通原始的阳台隔断 , 扩充空间面积的同时也能保证空间的采光 。
【玄关】
设计重点:不单调不复杂
弱化了入户口的不规整感和棱角感 , 设计师重点优化储物区的功能 。 增设了的多规格储物柜 , 同时还和增设的西厨区紧密相联 , 让空间能够在无形中保证互动感和交叉感 , 不仅提升了玄关的使用性能 , 也让空间在同一条动线上衔接的更加自然 。
【客厅】
设计重点:暗黑风贯穿全屋
因为在改造过程中设计师将非承重墙体进行了全部拆除 , 以保证空间在视觉上的连贯和通透 。 同时选择了统一有序的黑色作为空间的主色 , 力求实现风格上的和谐与一致 。
流畅动线上的布局极其的优雅和美观 , 突破了古板的定位 , 注入更多活力的元素 。
特别声明:本站内容均来自网友提供或互联网,仅供参考,请勿用于商业和其他非法用途。如果侵犯了您的权益请与我们联系,我们将在24小时内删除。
