白领的新房,预算不多但足够温馨,一人一猫照样?过的?幸福

文章图片

文章图片

文章图片

文章图片

文章图片

文章图片
【白领的新房,预算不多但足够温馨,一人一猫照样?过的?幸福】

文章图片

文章图片

文章图片

文章图片
这套房的屋主是位白领 , 平时生活在大的城市 , 由于工作原因 , 在大城市买了一套房子 , 自己在大城市过于寂寞 , 所以买了一只小猫做自己的朋友 。 她希望房子预算可以在30万左右 , 毕竟自己挣的不多 , 我们的设计师经过合理的预算 , 给他设计出了与小猫共处的环境 , 让他和小动物住的舒适 。
白领的新房 , 预算不多但足够温馨 , 一人一猫照样过的幸福
房屋户型:两室
房屋面积:80平方米
装修预算:30万
主要建材:铁件、石材、人造石、系统柜、木作、油漆、玻璃、仿清水模漆
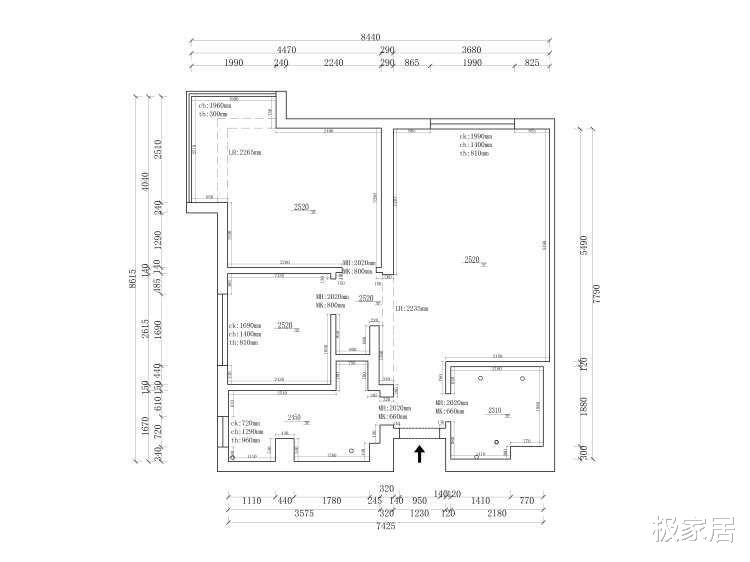
【户型图】
基础户型
房子是81平 , 两个卧室 , 房子位置非常优越 , 生活上有好的条件 , 她上班的路程仅仅用五分钟 。 入户过于凌乱 , 没有放置衣服的位置 。 空间中没有收纳功能 , 导致了物品乱放 。
改造重点
1、入户位置放置洞洞板 , 作为出行放置帽子衣物的挂钩 。
2、沙发后面放置置物板 , 做到墙体的装饰和收纳 。
3、电视柜用柜子的形式 , 有装饰效果 , 也可以内嵌电视机 。
4、厨房将要将原有的橱柜重新打造 , 设置成收纳强大的柜子 。
5、将餐厅位置移到沙发边缘 , 以开放的形式存在 , 空间中可产生互动 。
6、将黑暗的卫生间墙体改变浅色 , 让空间变得明亮起来 。
7、卧室阳台处放置桌椅 , 给女主创造一个舒适的环境 。
【玄关】
设计重点:抛弃疲劳
进门我们能看到试衣镜 , 对应一面有洞洞板 , 可挂出行的物品 。 我们可以想象一下女主下班回来 , 将外套和鞋子摆在应有的位置 , 顿时就抛弃了身上的疲劳 , 达到身心的放松 。
特别声明:本站内容均来自网友提供或互联网,仅供参考,请勿用于商业和其他非法用途。如果侵犯了您的权益请与我们联系,我们将在24小时内删除。
