90后夫妻42㎡的小家,坚持“去客厅化”设计,结果越住越舒适

文章图片

文章图片

文章图片

文章图片

文章图片
看了这对90后夫妻42㎡的房子 , 我才真正的明白什么叫做“低调奢华有内涵 , 高端大气上档次” , 全屋装修得实在是太漂亮了 , 虽然房子比较小 , 但是装修出来的效果 , 比样板间都漂亮的多 。
小夫妻俩很是时髦 , 为了实现拥有两个独立办公区和衣帽间的需求 , 果断地选择了“去客厅化”的设计 , 功能区齐全 , 装修出来的效果也非常好看 , 颜值超高 。
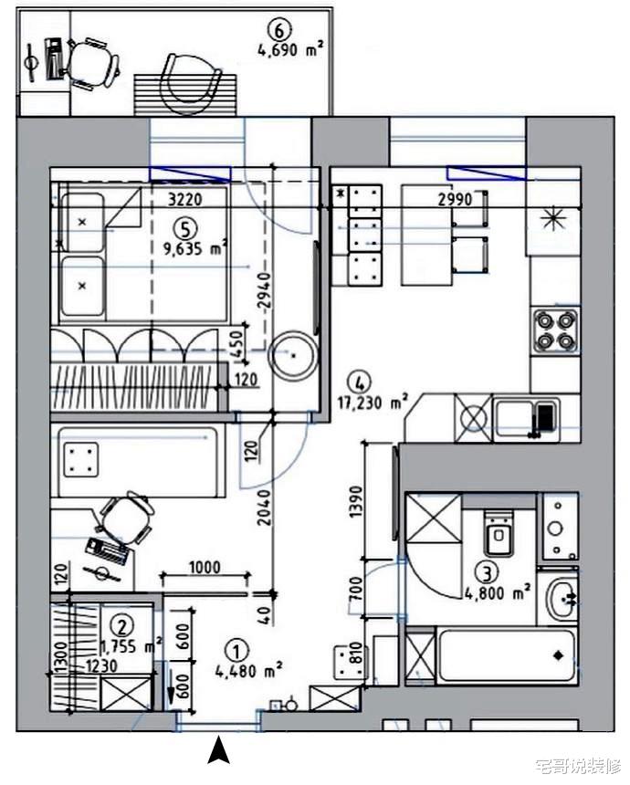
平面布置图
设计说明:
1.入户玄关左侧隔出了一个不到2㎡的衣帽间 , 右侧设计了储物柜和悬空的梳妆柜 , 解决入户收纳以及女主人的梳妆需求 。
2.正对入户门处设计了一个木制栅栏 , 避免进门见厅 , 保障室内空间的私密性 。
3.舍弃了传统意义上的客厅 , 设计了一个书房兼客卧的小空间 , 布置了书桌和一张单人沙发床 。
4.卫生间布置浴缸、浴室柜、马桶以及洗衣机柜 , 方便使用 。
5.厨房餐厅一体化设计 , L型厨房和卡座餐厅的设计 , 满足日常烹饪和用餐需求 , 同时也可以满足多人用餐的需求 。
6.卧室内布置双人床和整墙的通顶大衣柜 , 床尾墙面上安装电视 , 晚上可以躺在床上追剧 。
7.卧室外的阳台也设计成了一个办公区 , 夫妻俩在家的时候可以同时办公 , 互不打扰 。
玄关
看到玄关的第一眼感受就是非常具有现代感 , 门后上粘贴着一面全身镜 , 出门之前就可以在镜子面前整理整理自己的仪容仪表 。
入口处放置着一面地垫 , 这样进门的时候就可以将鞋底的泥沙、尘土等等都吸走 , 不会容易弄脏屋内 。
入户左侧的白色吊柜推拉门内 , 是一个小小的衣帽间 , 可以收纳外套、包包、围巾、帽子之类进出门需要的物品 。
正门对面安置着一个木制的屏风 , 具有分隔、挡风等作用 , 并且在视觉上也更加的美观 。
正门的右手边是一个比较有设计感的柜子 , 充当鞋柜和展示柜的功能 , 美观又实用 。
旁边的墙壁上安置着一个悬空的置物台 , 上面摆放着一些装饰品还有绿植 , 看起来非常的赏心悦目 。
台子的下面是一个皮质的小软凳 , 不仅耐脏而且坐在上面会感觉很舒适 , 台子上方的墙壁上粘贴着一面镜子 , 可以作为女主人的梳妆台使用 。
办公区
房子里有一个比较小的空间用来当办公区 , 角落里是放置电脑的区域 , 电脑桌放置在墙角的位置 , 更加节省空间 。
办公区里面放置着一个很小的沙发床 , 既可以充当沙发 , 又可以作为一个客卧使用 , 下面铺着一层地毯 , 起到装饰的效果 。
厨房
厨房的装修风格给人一种简约却又不简单的感觉 , 厨房是L形式的 , 灶台下方的橱柜是通体灰蓝色 , 透露着一种哑光感 。
特别声明:本站内容均来自网友提供或互联网,仅供参考,请勿用于商业和其他非法用途。如果侵犯了您的权益请与我们联系,我们将在24小时内删除。
