“去客厅化”的家越来越多,尝试过才知道,85㎡住5口人超舒适

文章图片

文章图片

文章图片

文章图片

文章图片

文章图片

文章图片

文章图片

文章图片

文章图片

文章图片

文章图片
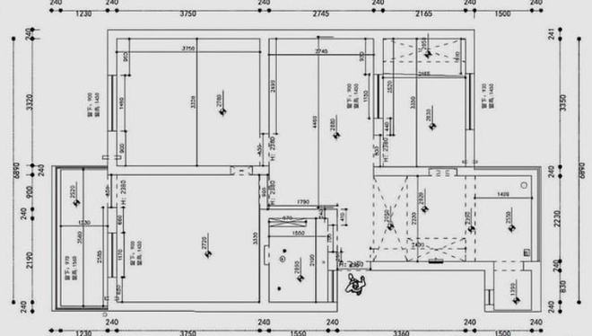
孩子的学习在中国家长的眼中是头等大事 , 就比如今天案例中的家庭 , 为了孩子的学业从大房子搬进了老破的学区房中 。 房子的面积有85㎡ , 在这空间里需要承载一家5口至少6年的时间 , 所以屋主通过设计师的帮助让这个空间重新改造 , 变得宽敞舒适 , 还拥有了高级感 。
我们为什么要把家装修得美好而精致?
- 【“去客厅化”的家越来越多,尝试过才知道,85㎡住5口人超舒适】因为家是心灵的港湾 , 人生的驿站;是感情的归宿 , 灵魂的延续 。
特别是“去客厅化”的设计 , 让一家人深感明智 , 去客厅化的家越来越多 , 尝试过才知道 , 85㎡住5口人超舒适
这里集中了老房子的几个问题:
1、进屋就挨着卫生间 , 动线紧凑 。
2、餐厅太窄 , 储物空间比较少 。
3、儿童房太小 , 缺少储物空间 。
4、采光差 , “五门归心”的格局浪费了太多空间 , 难摆放家具 。
【入户】
重新设计的能做的改动:
1、修改卫生间门洞 , 优化卫生间内部空间 。
2、餐厅向儿童房扩张0.4米 , 优化门厅和餐厅收纳的问题 。
3、去客厅化 , 解决五门归心导致的空间浪费问题 。
原先进屋显得紧凑 , 如今大门一侧设置顶天立地的鞋柜 , 增加了收纳空间 , 呼应木地板 , 呈现了温馨的气息 。 中间和下方镂空的鞋柜 , 让放置杂物和鞋子的空间“隐藏”起来 , 鞋柜组合着一个大衣柜 , 解决了儿童房放不下衣柜的问题;留出了冰箱的空间 , 衔接的非常平顺 。 空间显得大方敞亮 。
特别声明:本站内容均来自网友提供或互联网,仅供参考,请勿用于商业和其他非法用途。如果侵犯了您的权益请与我们联系,我们将在24小时内删除。
