
文章图片

文章图片

文章图片

文章图片

文章图片

文章图片

文章图片

文章图片

文章图片

文章图片

文章图片

文章图片

文章图片

文章图片
这次给大家分享装修主题为:95平三房改四房很实用 , 入户没玄关这样设计鞋柜太聪明了 , 分享下!
很开心给大家带来屋主她家这套套内面积为95平小三房 , 原本是三房的户型 , 但是考虑到自己家的需求 , 想要多一个房间作为书房 , 所以经过商量决定之后 , 很顺利把三房改四房 。 而且入户进来时候没有玄关的 , 但是这样设计鞋柜真的太聪明了 , 对于家里没有入户玄关的户型 , 很值得学习 。 带大家一起来看看 , 给大家分享一下全屋实景!
户型改造的案例其实有很多 , 什么两房改三房 , 或者三房改四房 , 或者四房改两房等等 , 都会有 。 户型改造 , 其实就是为了让自己家更完善 , 更符合自己家的需求 。 当家里没又入户玄关的话 , 可以根据自己家的户型 , 设计出合理的鞋柜 , 方便储物!
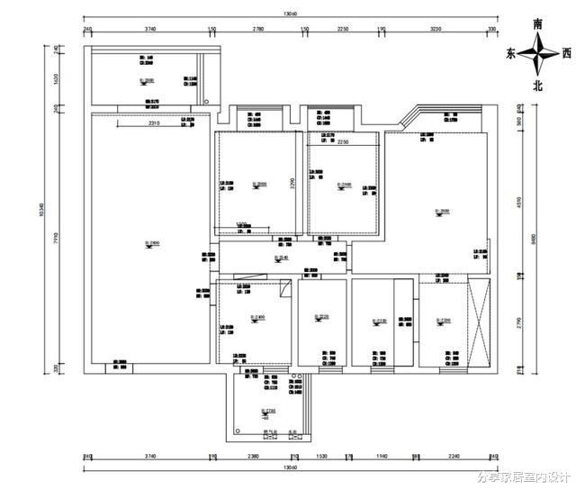
户型图
这是原始户型图 , 存在的问题主要是:
第一、入户进来是没有玄关 , 没办法有储物空间 。
第二、主卫空间相对比较大 , 空间利用率不高 。
第三、想要一个独立的书房 , 方便使用!
特别声明:本站内容均来自网友提供或互联网,仅供参考,请勿用于商业和其他非法用途。如果侵犯了您的权益请与我们联系,我们将在24小时内删除。
