
文章图片

文章图片

文章图片

文章图片

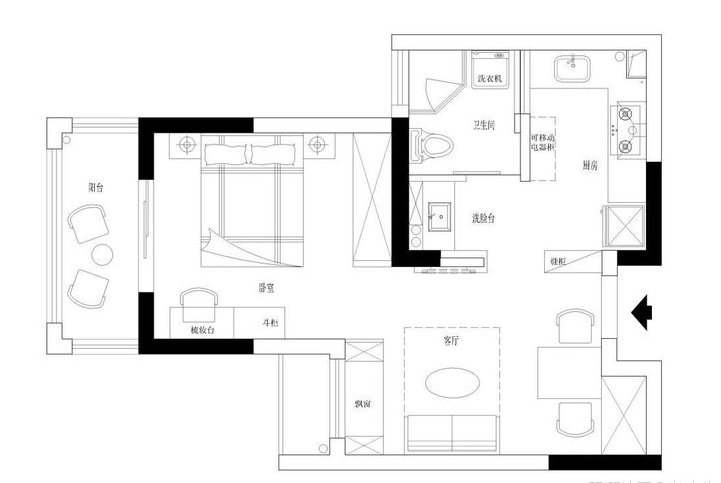
一套50㎡“凸字型”单身公寓设计案例 , 户型可以说有点不规则 , 客厅空间狭小 , 与餐厅共存 , 而且不是loft户型 , 一楼整个空间都非常紧凑 , 可用的空间精确到1㎡ 。 尤其针对我们这类资金不足的人群 , 小户型还算合适 , 无论面积大小 , 生活是绝不能将就的 。
【50㎡凸字型公寓,打破常规设计,进门就是厅,让人耳目一新】
经过设计师的巧妙设计合理布局 , 没用浪费每1㎡ , 玄关处与餐厅一体 , 在右侧设计一排柜子 , 底部镂空放置日常鞋子 , 餐厅后边做一组衣柜增加收纳 。
可以说每个空间都尽可能利用到 , 由于客厅本身面积有限 , 在于浴室公用的墙壁上安装电视机 , 所幸旁边是一扇飘窗 , 做成榻榻米式很舒服 。
客厅的风格很是清新 , 墙面虽然掺杂了多种颜色 , 但是浅色打底反而让空间凸显了一种清爽之感 。
厨房一体化开放式设计 , 将厨房化繁为简 , 干净整洁的操作区以及清新舒适的布局 , 十分满意 。
最后是卧室 , 简约爽朗的背景墙 , 营造了一种温馨舒适的睡眠环境 。 全屋唯一的阳台 , 用玻璃门隔开 , 外部当做休闲生活阳台 , 一个人住也十分惬意 。
本文内容来源于网络 , 如有侵权请联系删除 , 谢谢!
特别声明:本站内容均来自网友提供或互联网,仅供参考,请勿用于商业和其他非法用途。如果侵犯了您的权益请与我们联系,我们将在24小时内删除。
