130平新房装修现代简约风格,入户玄关设计茶室,进屋就被迷住!

文章图片

文章图片

文章图片

文章图片

文章图片

文章图片

文章图片

文章图片

文章图片

文章图片

文章图片

文章图片

文章图片
今日给大家分享主题:130平新房装修现代简约风格 , 入户玄关设计茶室 , 进屋就被迷住!
给大家带来屋主她家这套建筑面积为130平新房 , 考虑到自己的需求 , 最终与家人商量决定之后 , 在众多装修风格当中 , 选择了一直都比较备受大众喜欢的现代简约风格 , 并且全屋花了很多心思设计 , 真的蛮不错的 。 值得一提的是 , 入户玄关设计了茶室 , 一进屋看到就被迷住了 , 特别棒 。 带大家一起来感受感受 , 希望能给大家带来好的装修灵感!
对于爱喝茶的家庭来说 , 家里空间不管大还是小 , 在装修的时候都会预留茶室的位置 , 即使是开放式的空间 , 其实只有巴掌大的面积 , 也会很合适 。 有了茶室 , 一家人坐在一起喝茶聊天 , 真的太会享受啦!
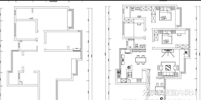
户型图
这是户型图 , 属于南北通透的户型 , 其实户型在变动上没什么多大的区别 , 仅仅是把阳台打通 , 其他基本都是按圆弧形去布局了 。 入户玄关空间足够 , 所以腾出一部分作为茶室 , 很实用 。
玄关
站在室内往入户大门看的角度 , 更清楚把入户鞋柜全都看完 。 鞋柜选择了亮面的柜门 , 显得比较美观 , 家里入户玄关这样设计一排的柜子 , 堪比多一间房还实用 。 辛辛苦苦换来的房子 , 半点空间都舍不得浪费 。
特别声明:本站内容均来自网友提供或互联网,仅供参考,请勿用于商业和其他非法用途。如果侵犯了您的权益请与我们联系,我们将在24小时内删除。
