女主人多年积蓄购买的新房,每一处都追求完美,让自己享受每一天

文章图片

文章图片

文章图片

文章图片

文章图片

文章图片

文章图片

文章图片

文章图片

文章图片

文章图片

文章图片

文章图片

文章图片

文章图片

本套房子的女主是由于资金的问题一直没买上 , 这不前不久刚买了新房 。 对于自己的房子设计起来会非常精心 , 比别人家的房子会更加的精致 。 她设计了很多的方案 , 但都不能满足 。 后来想想房子主要住的是功能 , 和整体的舒适感 。 所以她根据这两个出发点来设计 , 将自己的家达到了舒适的极点 。
女主人多年积蓄购买的新房 , 每一处都追求完美 , 让自己享受每一天
房屋户型:两室
房屋面积:124平方米
装修预算:45万
所在城市:北京
主要建材:线板、木皮、喷漆、大理石、黑铁漆、铁件、玻璃、木地板、壁纸
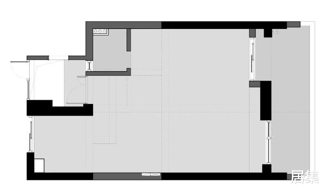
【户型图】
基础户型
本套房户型比较不错 , 有两个阳台 , 且视野上都很开阔 。 空间中没有固定的鞋柜 , 导致鞋子乱放 。 楼梯过于简单 , 安全性没有保障 。 封闭的厨房和餐厅 , 给整体空间带来黑暗 。
特别声明:本站内容均来自网友提供或互联网,仅供参考,请勿用于商业和其他非法用途。如果侵犯了您的权益请与我们联系,我们将在24小时内删除。
