[都华名苑]丨107㎡简约原木风设计温馨感十足
![[都华名苑]丨107㎡简约原木风设计温馨感十足](https://image.uc.cn/s/wemedia/s/upload/2022/5c2469f4684e14f252c17c15e1590baa.jpg)
文章图片
![[都华名苑]丨107㎡简约原木风设计温馨感十足](https://image.uc.cn/s/wemedia/s/upload/2022/f75c3af47757664122fa239eb2df8f53.jpg)
文章图片
![[都华名苑]丨107㎡简约原木风设计温馨感十足](https://image.uc.cn/s/wemedia/s/upload/2022/4df9c9e465acb3f02439f6d764d003f7.jpg)
文章图片
![[都华名苑]丨107㎡简约原木风设计温馨感十足](https://image.uc.cn/s/wemedia/s/upload/2022/c37aa4e1819f77dd1f4bd9325e5ed2a8.jpg)
文章图片
▼设计说明丨DESIGN DESCRIPTION
本案为三口之家 , 对空间利用的要求较高 , 功能满足三居室的前提下 , 要求各空间动线舒适合理 , 喜欢简约原木的风格 。
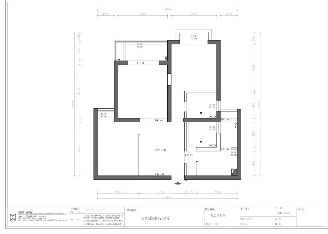
原始格局图
▼方案设计丨SCHEME DESIGN
最终平面图
设计详情:
本案原始户型大两居两卫的格局 , 对于三口之家来讲居住舒适度应该很高 , 但根据客户的诉求还是有一些户型格局上的问题要去解决 。
1.原始户型进户门正对主卧室门 , 很不舒服 , 风水方面比较忌讳 。
2.厨房一侧连通一个小阳台 , 而厨房下水和煤气管则是在阳台内侧 , 阳台宽度不够 , 做操作台面很局促 , 对于厨房来讲很不合理 。
3.要独立书房功能 , 还要满足偶尔居住功能 。
4.阳台做休闲功能 , 洗衣机烘干机不放在客厅阳台 。
为了解决这些问题设计师做了几稿调整方案 , 最终确定了现在方案
1.把现有厨房和两个卫生间格局从做功能布置 , 因厨房下水和煤气管道问题 , 原厨房整体上移 , 这样来解决厨房排水和格局问题 。
2.原厨房位置改成书房 , 保证办公功能 , 做箱体床和一体收纳柜 , 收纳休息两不误 。
3.原主卫生间改成干湿分离形式 , 干区做台盆柜和洗衣机烘干机 , 把主卧门改到影视墙一侧 , 做暗藏门 , 这样就解决的进户门正对主卧门的尴尬问题 。
4.改稿后厨房与书房墙体内移 , 缓解进门的沉闷感 , 同时能满足客户的两米的大餐桌和门口收纳问题 。
-
-
//本案设计师//
【[都华名苑]丨107㎡简约原木风设计温馨感十足】
特别声明:本站内容均来自网友提供或互联网,仅供参考,请勿用于商业和其他非法用途。如果侵犯了您的权益请与我们联系,我们将在24小时内删除。
