我承认地复式也很好,入户有院子,地下室又可现浇夹层,性价比高

文章图片
【我承认地复式也很好,入户有院子,地下室又可现浇夹层,性价比高】

文章图片

文章图片

文章图片

文章图片

文章图片

文章图片

文章图片

文章图片

文章图片

文章图片

文章图片

文章图片

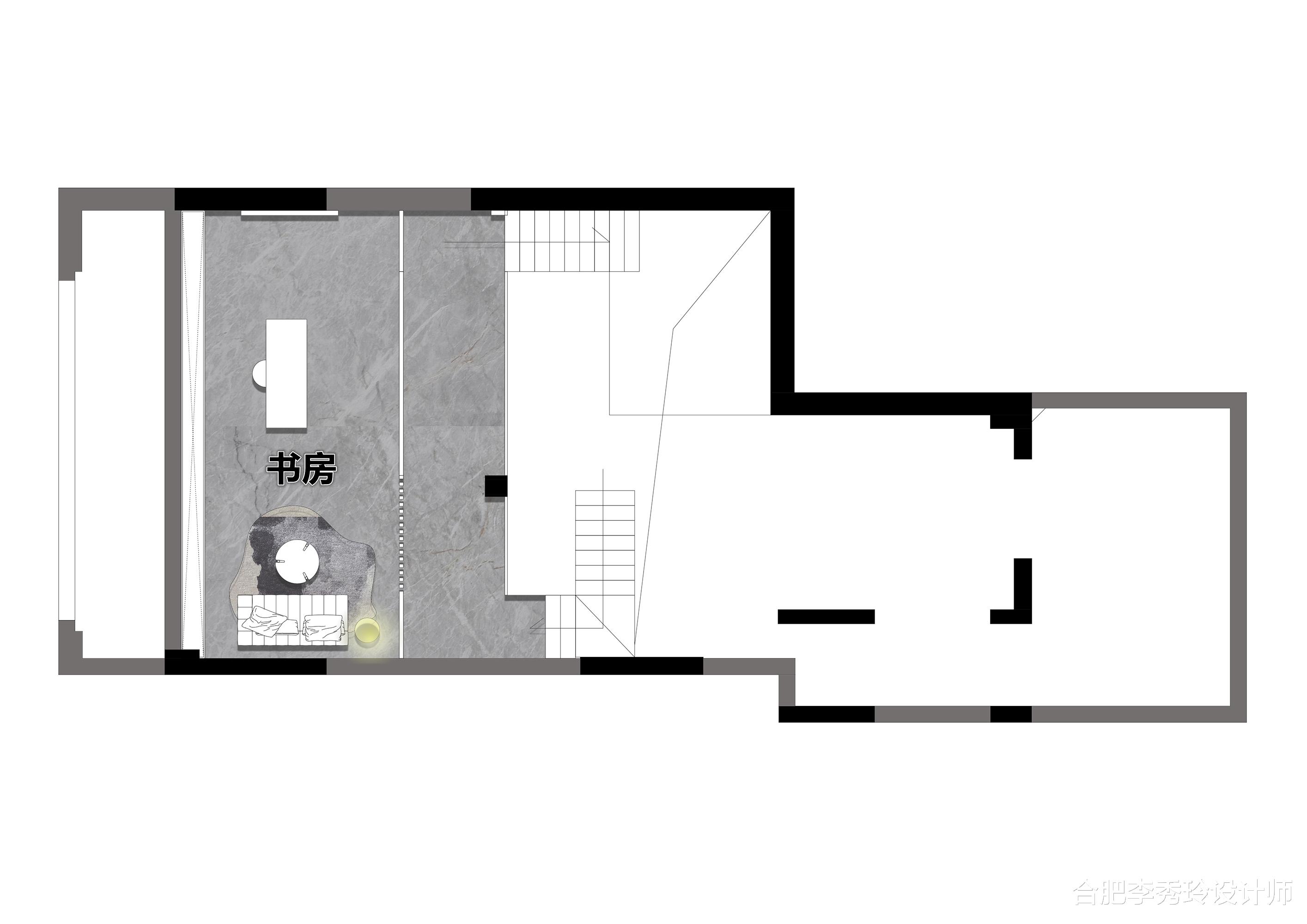
很多人以为顶复式抢手 , 其实地复式才是个香饽饽 , 尤其是像中海世家这种地下室层高比较高的 , 现浇一个夹层 , 3层也能变4层 。 入户带超大庭院 , 负一层地下室改多功能休闲娱乐区 , 还带独立车库 , 240㎡虽没别墅大 , 但性价比比别墅还高 , 亲戚朋友做客都往地下室跑!
业主信息:
业主是一对夫妻 , 大宝七岁 , 小宝马上也要出生了 , 加上父母一起生活 。 改完后的房子一共4层 , 一楼是父母的日常生活空间 , 二楼是业主一家四口的休息空间 , 地下室是全家人的活动区域 , 现浇夹层作为男业主的书房 。
一楼
●入户院子左边作为花园休闲区 , 右边设计成入户小路;
●进门处阳台拆一半留一半 , 拆掉的空间直接包进客厅;
●入户设计双玄关 , 内玄关跟客厅之间增加电视背景墙做隔断;
●厨房设计入墙式玻璃门 , 通透感好也不占空间 , 开放式和封闭式随时切换;
●卫生间门洞移位 。
门厅外面阳台量房图↓
入户内玄关量房图↓
客厅量房图↓
特别声明:本站内容均来自网友提供或互联网,仅供参考,请勿用于商业和其他非法用途。如果侵犯了您的权益请与我们联系,我们将在24小时内删除。
