
文章图片

文章图片

文章图片

文章图片

文章图片

文章图片

文章图片

文章图片

文章图片

文章图片
今天分享的这套135平的四房二厅二卫 , 经过三个月的时间 , 终于完工 , 小编跟随着设计师张明辉老师与项目经理方亮一起将新房交付给业主 , 就像我们的业主说的“本来一直不放心的 , 一直怕这增项那拖延 , 但没想到过年前真的可以做完 , 现在就差自己的家私还没买 , 挺感谢设计师和工长 。 ”业主装修后的满意度才是最重要的 。
-------------
项目/金碧路1980弄
户型/四房两厅两卫
风格/现代简约
建筑面积/135㎡
▼方案设计丨Scheme design
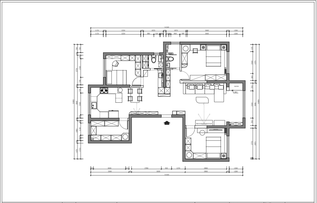
原户型图
【【金碧汇虹苑】丨135㎡新房装修,巧妙设计丰富空间层次美感】
最终设计图
▼玄关丨PORCH
进门的右手边设计了上下分体式玄关柜
这样设计不仅实用
还丰富了整体视觉上的层次美感
借用上下柜之间的这个错位差
刚好让玄关多了个可以坐下方便换鞋的地方
柜底安装感应灯 , 方便晚上找到自己想要的鞋子
-
▼客厅丨A LIVING ROOM
客厅因为现在沙发还没入场 , 所以显得有点空旷
为减弱红棕色家具的深沉感觉
设计师搭配白色墙体与浅灰色地板
形成鲜明的对比和映衬作用
即能保持空间的明亮干净 , 又可以缓解老家具的沉闷
整体来看 , 显得沉稳大气 , 静谧淡然
质感时尚却又不会显得乏味无趣
-
▼餐厅丨RESTAURANT
北卧室与厨房互换 , 做了开放式厨房的格局
原厨房位置做了衣帽间 , 保证了储物功能
将儿子房间的门洞调换方向
形成客厅、餐厅、厨房(LDK)一体的空间
非常通透 , 提高采光通风效果
虽然都在一个空间里 , 每个区域面积也都不大
却可以相互借力 , 空间利用率大大提升
巧妙结合各个功能区 , 却又不显凌乱
特别声明:本站内容均来自网友提供或互联网,仅供参考,请勿用于商业和其他非法用途。如果侵犯了您的权益请与我们联系,我们将在24小时内删除。
