那些坚持“穷装”的人,原来是真正的高明,是把“断舍离”悟透了

文章图片

文章图片

文章图片

文章图片

文章图片

文章图片

文章图片

文章图片

文章图片

文章图片

文章图片
所谓的“穷装”从字面上的理解就是没钱 , 装不起的意思吗?然而并不是!齐家栗子个人觉得的“穷装”其实是一种从本质上的“断舍离” 。 那些坚持“穷装”的人 , 他们是真正的高明 , 是把“断舍离”悟透了 。 它没有过渡的装修 , 没有复杂的设计 , 以简约纯朴为基调 , 从本质上拒绝了杂乱 , 是一种真正的高级感 。 让我们认真地审视家的每一处装饰搭配 , 自然克制住了买买买 , 就没有后续扔扔扔了 。 整个家那叫一个干净清爽 , 而且非常地明亮舒适 。 相信试过的小伙伴就知道这样的家住起来是有多爽 。 不信往下看这套案例 。
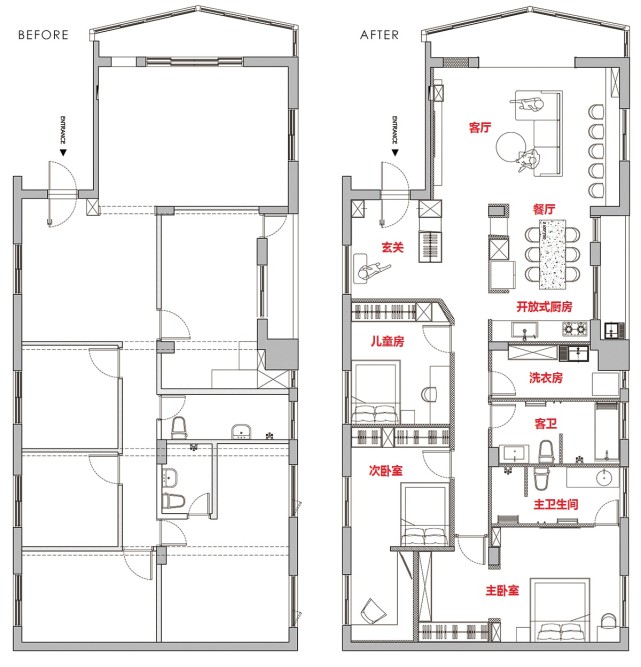
平面户型图
房屋基本信息
房子面积:142㎡
房子格局:3房2厅2卫
今天齐家栗子要和大家分享这套案例就是符合“穷装”的一种典范 , 从装修的本质上起到了“断舍离” 。 从平面图的规划上看到 , 把原始的玄关做了区域划分 , 厨房拆除了隔间 , 让客厅的采光可以无阻碍地进入室内 , 每个房间的采光根据卧室的位置不同做了合理的开窗设计 , 包括了浴室开窗朝向 , 这样的整个房子每个处采光都非常地充足 , 室内的家居陈设和软装不拖泥带水 , 以实用性强为主 。
那么话不多说 , 一起来看看各个空间细节设计吧!
客厅设计
【那些坚持“穷装”的人,原来是真正的高明,是把“断舍离”悟透了】
踏入屋内眼前的开阔简明的纯白空间 , 让人倍感的舒畅 。 是个白色的柜体内含了收纳储物功能 , 断开的柜体间彼此形成了动线的联动效应 。
回字型的空间设计 , 不只是让家里的小孩子玩耍充满着乐趣 , 同时让光线与空气能够自由地流通起来 。
特别声明:本站内容均来自网友提供或互联网,仅供参考,请勿用于商业和其他非法用途。如果侵犯了您的权益请与我们联系,我们将在24小时内删除。
