
文章图片

文章图片

文章图片

文章图片

文章图片

文章图片

文章图片

文章图片

本期案例 , 坐标北京 , 屋主是六口之家 , 常住人员除了屋主夫妻以外 , 还有两个宝宝和两位老人 。 屋主夫妻比较注重装修的实用性 , 希望改造后的房子既能兼顾一家人的生活需求 , 也能呈现出温馨舒适的氛围感 。 下面 , 就让我们一起参观下屋主的“新家”吧!
这套59㎡的“老破小” , 居然凭设计翻身了 , 不仅改出三房两厅 , 还有非常丰富的收纳空间 , 让人忍不住点赞!
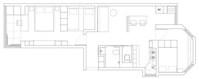
▲装修实拍图//户型分析//
①整屋套内面积约59㎡ , 原户型是两居室的 。
②户型狭长、承重墙多 , 采光和通风性都比较差 。
③唯一的优点是南北两侧各带一个小阳台 , 不算面积 , 可以利用起来 。
▲户型平面图//设计亮点//
①在客餐厅定制半高电视柜 , 从视觉上划分了两个空间 。
②把南面的主卧分为“主卧+儿童房” , 并通过地台设计 , 提升储物能力 。
③打通餐厅和背面小阳台 , 在阳台内规划嵌入式冰箱和洗衣机 , 美观又实用 。
▲装修平面图玄关
在原户型中 , 入户玄关是一个狭长的空间 , 完全没有位置摆放鞋柜 。
为了解决这个问题 , 设计师借用了旁边卫生间的部分空间 , 在玄关定制了嵌入式鞋柜 , 可满足入户区域的储物需求 。
鞋柜前方的墙面上 , 悬挂了一面黑框全身镜 , 不仅让屋主一家人在出门前可以整理仪容 , 也能起到放大空间感的作用 。
▲玄关实拍图客餐厅
客厅和餐厅在同一个空间内 , 中间用半高电视柜做分割 , 既保证了视觉上的独立性 , 又让两个区域保持了紧密联系 。
电视机玄关在电视柜上 , 电线和插座都隐藏在其后 , 外观简约又整洁;柜子低矮的造型 , 成就了环绕式的生活动线 , 同时也最大限度地保留了屋内的明亮通透 。
▲客厅实拍图1.4米长的餐桌紧挨电视柜摆放 , 它的宽度只有0.5米 , 外观看起来很轻盈 , 既不会压挤餐厅的空间感 , 又能满足一家六口的用餐需求 。
特别声明:本站内容均来自网友提供或互联网,仅供参考,请勿用于商业和其他非法用途。如果侵犯了您的权益请与我们联系,我们将在24小时内删除。
