240㎡大户型简约设计,超大主卧通体空间设计

文章图片

文章图片

文章图片

文章图片

文章图片
【240㎡大户型简约设计,超大主卧通体空间设计】

文章图片

文章图片

文章图片

文章图片
案例解析
简约风一直深受各业主青睐 , 在于它所展现的美感是凌驾于设计师对装修材料、色彩搭配的过往学识经验 。
所有细节单看一处简洁而朴素 , 但整体呈现出的是一个简约大气 , 明朗舒适的人文空间 。 简约风的设计需要境界 , 强调室内空间形态和物件的单一性、抽象性 , 在空间设计中追求内外通透 , 不受承重墙限制的自由 。
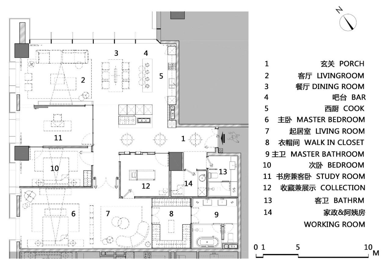
此户型以玄关为界上下分区 , 整体布局、动静线均匀合理 。
玄关
入户即玄关 , 左侧柜体满足业主家杂物及进门时随身物品的储放 , 右侧简约创意性的吊灯使原本平淡的空间显得动态有活力 。
客厅
因为户型面积大 , 打理起来是件费力的事情 , 在地砖的选择上首选600*1200灰色通体地砖 。 选择白色地毯与整体空间的白色调相呼应 , 再利用带有黑色元素的家具进行点缀搭配 。
简约厚重的大理石背景墙更显大气 , 将所有连接线影藏在电视机后面 。
餐厅
餐厅与吧台、西厨承“三”字型相连 。 预留两侧过道空间 , 平日邀请宾客饮酒作乐丝毫不会造成交通动线拥挤 。
打开百叶窗帘厨房空间照明充足 , 通透的空间将窗外远景一览眼底 , 淘菜做饭之时也能享受空间带来的乐趣 。
书房
书房立面简洁顺畅 , 用几何线条修饰空间 , 在快节奏的都市生活中更容易让人沉下心来思考、办公 。
屋主的书房主要用来会议交谈 , 在家具的选择上摈弃了书架 , 为了具备储物功能在墙上开了壁龛供日常物品的存放 。
屋主家的起居室、卧室、衣帽间、主卫通体连接 , 处于整个空间中的一处别样天地 , 与外界空间互不打扰 , 集合私密性与舒适性 。
起居室
卧室
衣帽间
卫生间
特别声明:本站内容均来自网友提供或互联网,仅供参考,请勿用于商业和其他非法用途。如果侵犯了您的权益请与我们联系,我们将在24小时内删除。
