大横厅,随便一装都那么美,真后悔当初没有选它

文章图片
【大横厅,随便一装都那么美,真后悔当初没有选它】

文章图片

文章图片

文章图片

文章图片

文章图片

文章图片
我们中国人买房 , 都喜欢南北通透的户型 , 确实南北通透格局的通风效果很好 , 房间内的异味 , 厨房和卫生间里所产生的废气也可以迅速对流出去 , 让家里保持室内空气的清新 , 所以当初我买房的时候 , 也是按这样的来选 。
可最近看了不少的装修 , 发现除了南北通透的房子 , 横厅结构也能这么美 , 而且这样的横厅设计 , 由于面宽>进深 , 将两个动态区域设置在一起 , 室内显得特别的开阔与敞亮 , 这样的大空间随便一装都是那么美 , 现在是越来越后悔当初没有买横厅的房子 。
本期给大家带来的就是一套大横厅的装修案例 , 再加上装成了日式风格 , 室内更加好看 。 日式风格 , 是一种朴素的美学 , 经过设计实现返璞归真 , 将自然、原本、纯粹的生活美学展现得淋漓尽致 。
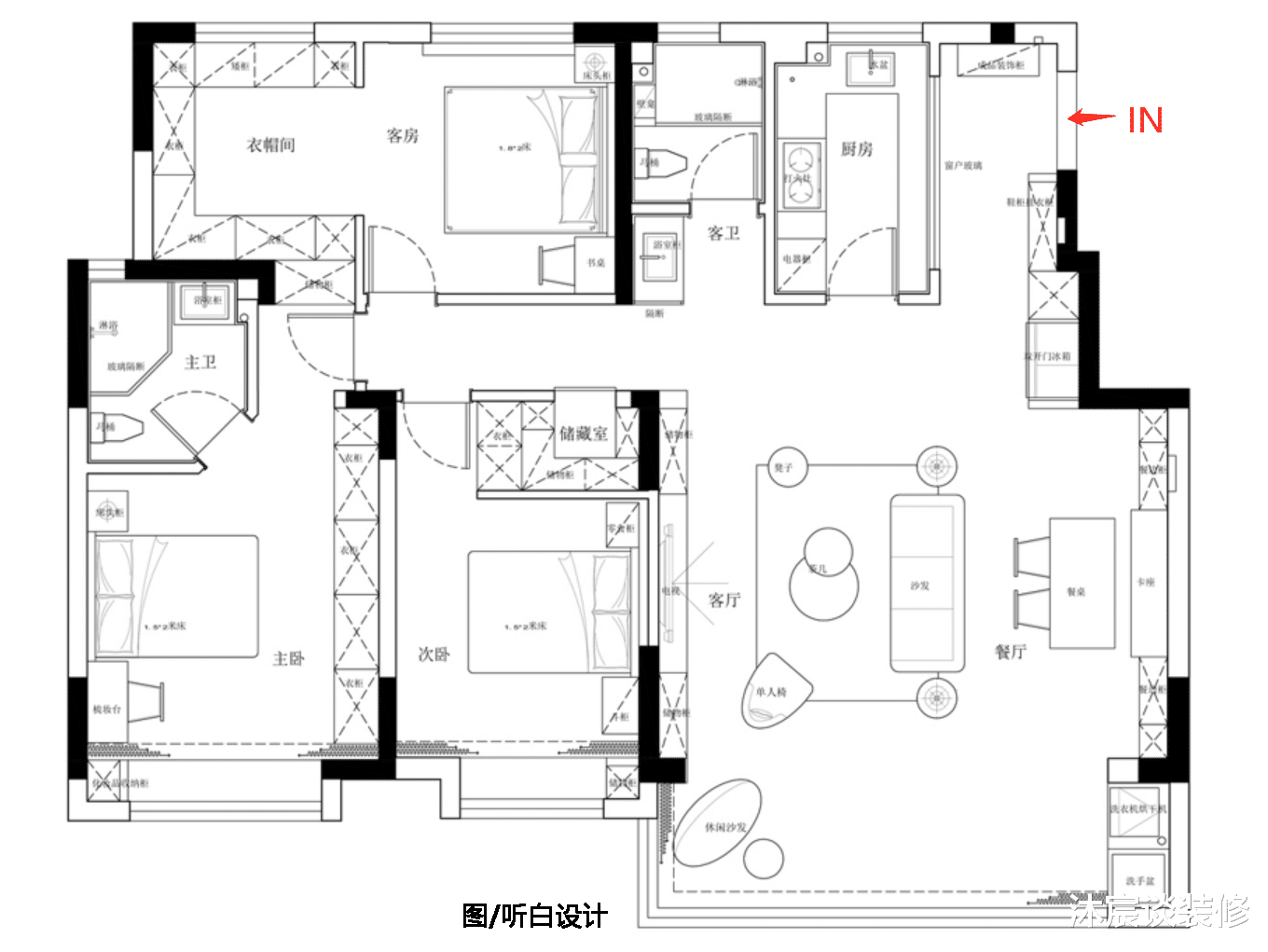
听白设计上面是该横厅的最终平面布置图 , 很显然 , 完美的户型不需要过多的改造 , 保留对原始结构最大的尊重 , 但我抓取到两个细节 , 一是将厨房靠近大门的墙体改成了玻璃墙 , 让光线更透 , 开门就见敞亮 , 心情很好;其二是北边的两间卧室打通成一个套房 , 让居住者享受更为开阔的休息空间 。 下面跟着我一起去看实景细节 。
客餐厅在一起 , 开阔大气
直接来看家里最大的活动空间 , 一眼望去横厅 , 满目的大气 , 先不说风格怎么样 , 光是这么开阔的空间就足够吸引人的眼球 , 相比竖厅 , 横厅没有了中间的过道空间 , 全计算在一起 , 利用率更大 , 这也是后来我所关注到的 , 再后悔也没有用 , 等有钱了再去买一套横厅结构的房子 。
再来说装修风格 , 很显然 , 经典的日式风 , 在纯净的白色空间里 , 用原木家具 , 简单就营造出温暖静谧的居家氛围 。
区别以往看见的全屋通铺木地板的日式风格 , 这个横厅里选择了哑光灰色瓷砖 , 简约不过时 , 耐看又好打理;搭配暖米色布艺沙发 , 用它柔软亲切感来降低瓷砖的硬朗气息 , 共同塑造一个经典且不失艺术气息的空间 。
日式风格追求简单的同时 , 还讲究实用性 , 除了可以收纳的电视背景外 , 沙发后面的用餐区 , 也定制出可收纳的长排吧台椅 , 一直延伸至阳台区 。 两个对立的收纳系统 , 和谐大方 , 即区分了客餐厅 , 还让空间保持高度的统一性 。 不乱 , 干净 , 做到了日式的纯粹无杂 , 越看
特别声明:本站内容均来自网友提供或互联网,仅供参考,请勿用于商业和其他非法用途。如果侵犯了您的权益请与我们联系,我们将在24小时内删除。
