
文章图片

文章图片

文章图片

文章图片

文章图片

文章图片

文章图片

文章图片

文章图片

文章图片

文章图片
作为一位多年的家具博主 , 其实见过很多各种各样的装修效果 , 但是说实在话的 , 这是我见过让人觉得舒适的小三房了 。 装修定位简约风格 , 以灰色调为主 , 搭配出来的效果 , 全屋好看不复杂 , 真心不错 。 一家生活在这样的家 , 这样的环境 , 真的很幸福 。 家里还没装修或者正在打算装修的朋友 , 建议大家收藏起来哈 , 也希望能给大家带来好的装修灵感!
最为舒适的装修 , 我个人定义为具备亮点 , 第一点符合绝大部分人的审美 , 第二简单不复杂 , 轻松搭配就很容易出效果 。 家里装修具备这两点 , 这样的装修其实不是那么常见 。 家里应该装出这样的效果 , 尤其是对于现在快节奏的生活来说 , 更是要如此了!
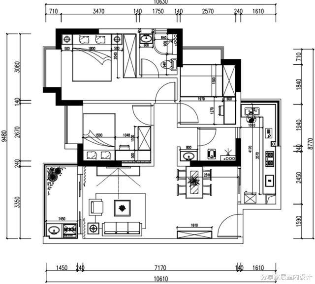
户型图
属于比较典型的户型了 , 从入户进来是没有玄关的 , 对于户型来说 , 有点小遗憾了 。 户型方方正正 , 室内各个空间与采光都不错 , 并且动静分区合理 , 不需要修改墙体或者砌墙那么麻烦 。 常用人口为三人 , 但是家里父母偶尔过来生活 , 所以在装修的时候 , 也有考虑在内!
鞋柜
入户进来没有玄关 , 但是刚好利用旁边的位置 , 布置了一个非常实用的鞋柜加书柜的一体化设计 , 可以满足生活需求 。 考虑到家里有小孩储物空间 , 还专门布置了小书架 , 可以方便收纳 。 东西很多 , 归类收纳 , 很有生活气息 , 给人的感觉不复杂 , 特别舒适 , 也很温馨 。 柜子无拉手的设计 , 显得比较简洁 , 大方 , 看着都喜欢!
餐厅
餐厅空间小 , 布置了一张岩板材质的方形餐桌 , 占用的空间大小位置合适 , 人多就座用餐的时候 , 需要挪动位置或者变动方向 , 方便很多 。 整个空间都是灰色为主 , 搭配了橙黄色的餐椅 , 颜色搭配起来很协调 , 特别漂亮!一家人开开心心坐在一起用餐 , 真的太幸福的画面了 , 很让人嫉妒!
- 苏格兰牧羊犬究竟多少钱?与这些要素相关!
- 喝什么茶叶减肥效果好呀!
- 微信私人放款怎么放? 私人微信放款24小时在线
- 经商之道的精髓7句话有哪些? 生意经营之道口才
- 初次创业开什么店合适 创业开什么小店最稳
- 小本创业项目有哪些? 创业小项目
- 现在做什么生意最挣钱? 现在开什么店最挣钱
- 如何学做生意之道? 做生意口才技巧
- 狗狗闹肚子了怎样处理?不要慌,学完这几招目标都夸你!
- 喝减肥茶能真正减肥吗 吃减肥药喝减肥茶这的管用吗
特别声明:本站内容均来自网友提供或互联网,仅供参考,请勿用于商业和其他非法用途。如果侵犯了您的权益请与我们联系,我们将在24小时内删除。
