
文章图片

文章图片

文章图片

文章图片

文章图片

文章图片
【杭州小姑娘的25㎡小家,小如“蚂蚁巢穴”,却是她的港湾】

文章图片
不论在哪一个城市 , 买房子永远都是一个难题 , 对于刚刚从学校毕业的年轻人来说更是一个极大的挑战 。 所以为了能够在城市里有一个属于自己的家 , 人们只能埋头苦干不断地去奔波去努力工作 , 最终的目的只有一个就是买房 。
杭州小姑娘的25㎡小家 , 小如“蚂蚁巢穴” , 却是她的港湾
这位小姐姐从大学毕业之后一直在外地打拼 , 为了能够买一套自己的房子基本全年无休 , 在工作了六年之后终于完成了自己的梦想 。 虽然房子小 , 但是承载了自己关于生活的一切美好理想 。
房屋户型:一室
房屋面积:25平方米
装修预算:5万
所在城市:杭州
主要建材:天然大理石材、烤漆玻璃、天然实木木皮、超耐磨地板、人造石
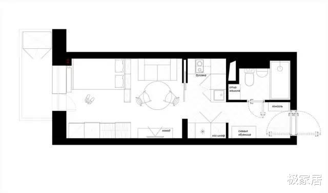
【户型图】
全屋的面积一共25个平方 , 从入户到尽头呈现狭长型结构 , 基本没有任何独立的空间 , 对于一个人来说多少有一些不方便 , 但是经过了灵活的布局之后 , 将空间优化的更加自然和合理 。
【玄关】
设计重点:二手家具做主角
因为小姐姐的成本有限 , 加上空间面积本身也不大 , 所以在软装上不需要花费太多的成本 , 大部分都是小姐姐从网上淘来的宝贝或者是从二手市场上买来的旧家具 , 重新包装打磨之后就变成了空间里的主角 。
玄关的面积还算宽敞预留了足够的换鞋区收纳区 , 让空间过度的更加自然和舒适 , 没有刻意的布置让整个空间都非常的浪漫 。
【客厅】
设计重点:一体化设计节省空间
客厅和餐厅是一体式空间 , 避免了空间的额外浪费 , 也能够形成有效的空间布局 , 深蓝色的两人坐沙发 , 搭配一张圆形的餐桌 , 既能够满足会客的需求 , 也能够让一个人的就餐变得格外浪漫和充满仪式感 。
为了保证储物空间足够宽敞 , 在背景墙上都分别设计了吊柜 , 既可以收纳生活杂物也能够让这个小空间变得格外饱满和高级 。 低调的灰色作为空间的主色 , 让这个空间变得十分有气质 , 搭配的单品也都非常的有个性 , 让小巧的空间也变得格外多彩 。
而考虑到空间存在的局促性 , 在采光上也做足了准备 , 阳台选择了落地窗 , 白天可以让阳光充分的照射进来 , 一个人居住也丝毫不会觉得空间过于压抑或者沉闷 。
- 170㎡法式奶油风,家里还有旋转楼梯,处处都是法式的温柔和浪漫
- 没有绑定手机号的qq密码忘记了怎么找回 没有绑定手机号的微信怎么找回
- 互删的微信好友怎么找回 微信怎么找回刚删的
- 华为手机短信被删怎么找回 自己的微信被删怎么找回
- 微信好友删除了怎么找回来 微信删的好友怎么找回来
- 保障网站高防服务器的安全,这些流程不可少
- 抖音蓝V认证的优势
- 运动减肥中 体重增加的问题
- 慢跑和跳绳结合的减肥效果怎么样?
- 因为手机耳机孔该不该取消,荣耀总裁赵明的微博又炸了
特别声明:本站内容均来自网友提供或互联网,仅供参考,请勿用于商业和其他非法用途。如果侵犯了您的权益请与我们联系,我们将在24小时内删除。
