
文章图片

文章图片

文章图片

文章图片

文章图片

文章图片

文章图片

其实在我看来 , 家并不一定要非常大 , 或者装饰华丽 , 一间小小的屋子、简单的装饰 , 未尝不能成为你避风的港湾 。
今天齐家云云要给大家分享的这间户型 , 便是一所29㎡的公寓 , 户主是一位年轻女孩 。 她的要求也很简单 , 就是将厨房、卧室的空间尽可能缩减 , 保证日常自由活动的范围 。
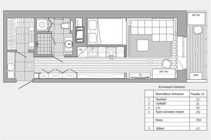
▲话不多说 , 先来看看户型图吧~属于窄长户型 , 但优点是并没有多余的转角
一进门 , 这所公寓给人的第一印象就是——小而干净 , 白墙搭配木质家具的设计 , 让整个空间看起来十分明朗 。
门口仅仅利用墙壁的冗余空间设置了换鞋凳、鞋柜 , 充分节约了空间 。
先来到客厅看看~这方空间承载了客厅、娱乐间、书房的功能 , 可以看到依旧保持了那种带有简约现代风的明快之感 , 整体装潢并不复杂 。
沙发后的壁灯充分提升了空间氛围 。
沙发右侧便是床榻的区域了 , 这里我们稍后再看;
让我觉得看上去很舒服的 , 是这一大张地毯 , 有效中和了单调感 , 让室内观感显得更具层次 。
对面的电视并没有很大 , 只占据了墙面一侧 , 另一侧则用书桌“填补”
墙上的一字隔板既是书架 , 又是装饰 , 这种设计我们在装修时也可充分借鉴一下 , 省时省力 。
让我们走进这间公寓的核心部分——卧室 , 或者叫它是睡眠舱 。
一眼看上去它像是一个盒子 , 外围用原木色的建材进行装饰 , 不得不说 , 这种简单的装饰浑然天成 , 与周围空间自然融为了一体 。
整个卧室仅有一张床 , 几盏灯 , 再无其他 。
这种化繁为简的设计 , 道出了小户型公寓的精髓 。
与“卧室”共用一个结构 , 厨房就设立在墙的另一边 。
厨具也无非就是冰箱、烤箱、碗槽 , 白色的橱柜与室内装潢形成统一 。
【女孩独居29㎡小户型,一平米都不敢浪费,卧室仅有一张床大小】厨房没有安装主灯 , 或者说这间公寓内都没有主灯 , 顶部用射灯代替 , 操作区安装了专门的照明灯 , 一简到底 。
卫生间虽然没有做时下火爆的“三分离”设计 , 但是整体规划也很得体 , 起码空间足够宽敞不是~
- 95㎡现代简约三居室,原木收纳柜配大白墙实用舒适有格调!
- “四叶草”150㎡,不为别人留客房,一衣帽间一书房,两口子都满意
- 面积还没有100㎡,95㎡的家却装出了大气感,木地板通铺减少空间划分
- 127㎡纯日式空间的理想助力,实现真正的自然,打造身心的温暖
- 鲜花怎么保存时间长 鲜花怎么保鲜
- 晒晒110㎡的新房,花了8万,头一次看到榻榻米可以这么美!
- 七、八十斤的女孩一天都吃几顿饭啊,该怎么减肥呢?
- 30岁的她奋斗多年,攒钱买下北京老破小,45㎡小家翻新后差别太大
- 最快的减肥方法减20斤 女生减肥的最快方法 喜欢美的女孩
- 164㎡江景房户型好、视野好,唯独败在配色上,真的可惜大平层了
特别声明:本站内容均来自网友提供或互联网,仅供参考,请勿用于商业和其他非法用途。如果侵犯了您的权益请与我们联系,我们将在24小时内删除。
