亿伽设计│酒店设计│Perianth酒店:古老城市中的现代生活

文章图片

文章图片

文章图片

文章图片

文章图片

文章图片

文章图片

文章图片

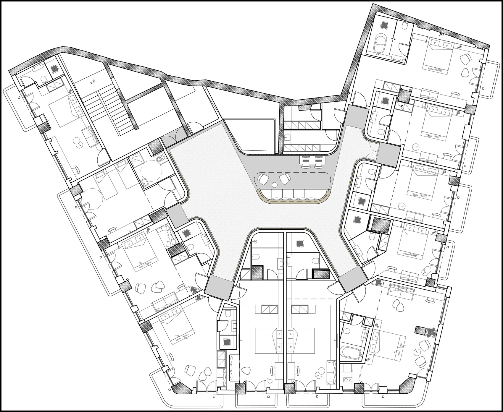
挑战
据亿伽酒店设计了解 , 项目位于希腊 , 其主要挑战在于要重新设计原始建筑的布局 。 该建筑最初是为了容纳商店、办公室和公寓住宅而设计 , 其结构完全依附于当时的功能需求 , 因而在布局上呈现出不规则性 。 本次改造的目的是通过创新性的方法来重新组织空间 , 使其能够发挥新的作用 。
【亿伽设计│酒店设计│Perianth酒店:古老城市中的现代生活】
思路
酒店每个楼层的交通路径都与建筑立面的曲线形成相互呼应的关系 。 设计的主要思路是创造一条较宽的“主路” , 并在此基础上延伸出数条“小巷” , 每条小巷与2-3个房间相连 , 且位置较为隐蔽 , 保证了客房的私密性和隔音 。 通过这种创新性的设计 , 传统的酒店走廊被赋予了类似于雅典城区的布局模式 , 并自然地衍生出数个“邻里广场” 。
特点
原本不规则的结构格局使每个房间都呈现出不同的特点 。 倾斜的墙壁、余留的角落和变化的天花板高度均得到了创造性的介入和处理 , 为空间增添了轻松和舒适的感觉 。 改造后的房间变得开敞而通透 , 淋浴间和储物设施也被巧妙地融合在墙壁结构当中 , 与内部空间形成无缝融合 。
灰色主调
色彩和材料的搭配也源自于立面的灰色主调:水磨石地面为空间带来清凉和轻盈的感觉;质地更加厚重的美国胡桃木增加了空间的温度和深度;粉红色的天鹅绒布料则带来与建筑风格相得益彰的独特魅力 。 大胆而简洁的家具搭配以定制的黄铜装饰 , 对空间的氛围起到了强调和补充的作用 。
- 3栋人性化设计的三层别墅,占地面积120-130平左右,非常美观大方
- 138㎡因为客厅火了,灵活可变的设计太实用,全屋更是简约大方!
- 谁帮我设计一张减肥进度的电子表格
- 菡萏怡景装饰|现代风,将阳台利用起来做一个茶室的设计!
- 浅谈室内装修设计中软装饰的两点主要表现形式 南耀建筑设计
- 不听家人劝,坚持把新房这7处设计的“与众不同”,如今越用越香
- 这么小的阳台,怎样才能设计得更合理呢?并且改造成超能收纳空间
- 109平英伦风设计,导演一场关于时间和空间的穿越
- 现代装修也能装出轻奢感,被人以为是样板间的设计
- 茶叶包装设计如何寻求创新点?
特别声明:本站内容均来自网友提供或互联网,仅供参考,请勿用于商业和其他非法用途。如果侵犯了您的权益请与我们联系,我们将在24小时内删除。
