
文章图片

文章图片

文章图片

文章图片

文章图片

文章图片

文章图片

文章图片
对于装修 , 我们是丝毫不能麻烦 , 稍微不注意就会酿成大错 , 很多初次装修的小伙伴并不能够把所有细节考虑到 。
装修又是一项无法补救的项目 , 往往头脑一热就盲目装修 , 直到装修好后 , 才发现不对劲 , 所以今天小编总结了8条装修建议 , 没有装修的小伙伴要注意了!
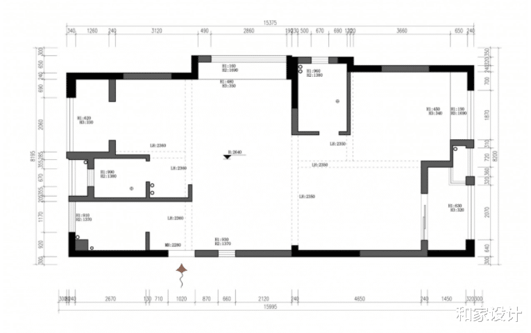
一:平面规划图很重要
平面规划不是画出来做做样子而已 , 建议找一个靠谱的设计师 , 仔细推敲一下 。
前提是把尺寸测量清楚 , 以后很多东西都要用到这张图 , 它的作用甚至比效果图都要重要!
当然 , 设计不是一个人的事情 , 你需要做的就是把自己的生活习惯完全地描述给你的设计师 , 不要觉得描述是一件很容易的事情 , 我敢说90%的人都描述不清楚!
你所描述的事情都是很笼统的 , 所以要想做到细节化 , 这个事情你最少要提前一个礼拜准备 , 把任何一个地方都记录下来 , 不管对错 , 之后再和设计师商讨 。
通过对自身习惯的描述 , 合理的规划空间 , 全面地考虑各种功能 。
这些东西都会明明白白地体现在平面布局方案上 。
但是 , 你不能够依赖于设计师!
这是一个很不好的习惯, 很多人都喜欢把设计交给设计师 , 但是要记住 , 生活是自己的 , 设计师的惯性思维 , 并不一定适合你 , 如果你是个意志不坚定的人 , 很容易被设计师左右 。
如何看平面图是否合规?
1、要审核动线是否合理 , 是否符合自己的生活喜欢 , 记住 , 是自己的 , 不是一般情况下的设计 , 很多设计师都会说:“一般都是这样设计 , 一般都是做多高 , 一般都是放这里” , 没有一般 , 你就是你自己 。
2、看尺寸是否标注明确 , 这个很重要哦 , 床的尺寸 , 沙发的尺寸 , 橱柜的尺寸 , 卫浴需要买多大 , 两边的空隙是多少?检验一个尺寸图是否标准就看是不是整数 , 很多时候设计师会把桌子标注出1020MM或者是1002 , 床标注成1805或者18746等等 , 类似这样的零数 。
一般情况下 , 家具是没有零头的 , 都是整数 , 如果出现这样的情况 , 说明设计师在糊弄 。
3、对于细节地方的处理是否合理 , 尤其是一些拐角处 , 在兼顾美观的同时也要保证实用性 , 一些细节如果设计师处理不到位 , 做效果图也是白搭 , 并且要考虑到装修材料和风格 , 能不能讲明白 , 是考验一个设计师的基本功底 , 也是装修前的首要任务 。
- 家装有没有必要做瓷砖美缝?美缝除了好看,还有别的作用吗?
- 家装贴瓷砖时要不要对缝?工人:对缝费料,不对缝难看
- 129㎡现代简约风,不拘一格的设计,简约不失家装美
- 618卫生间电器怎么选? 家装干货分享
- 家装用硅藻泥好还是用墙布好?
- 家装的正确流程是什么?
- 小卫生间设计避坑指南:5个地方,不能像正常卫生间一样装修
- 35岁宝妈晒出自家装修,因家居布置而走红,网友:这三居室太实用
- 家装水管电线走顶还是走地?工人推荐走顶,真的只是为了赚钱吗?
- 家装用什么防水,家装防水的步骤是什么?
特别声明:本站内容均来自网友提供或互联网,仅供参考,请勿用于商业和其他非法用途。如果侵犯了您的权益请与我们联系,我们将在24小时内删除。
