难怪越来越多人“去客厅化”,看完这对夫妻的家才明白,太实用了

文章图片

文章图片

文章图片

文章图片

文章图片
相信“去客厅化”这个词 , 对于即将装修或已经装修过的业主来说并不陌生 , 因为家居资讯看多了 , 你总能刷到这样的案例 。
“去客厅化”的家越来越多 , 或许只有尝试过 , 才知道住起来有多爽
说实话 , 现在“去客厅化”设计的人越来越多 , 这绝不是跟风 , 而是一种趋势 , 因为我们会发现 , 打破客厅传统布局 , 并适当舍弃沙发、茶几和电视机这“老三样”后 , 这对于那些不爱看电视 , 以及不需要会客的人来说 , 家就被赋予了更多的可能性 , 如此便能满足自己的个性化需求 , 而或许只有尝试过 , 才知道这样的家 , 住起来多有爽!
像本期要分享的案例就是如此 , 位于四川成都 , 女主是位浪漫文艺且酷爱音乐的文科女 , 男主则是一丝不苟的理工男 , 由于会客需求少 , 屋主夫妻俩 , 就将147㎡的家 , 采用了“去客厅化”的设计 , 总之看了这对夫妻的家才明白 , 这么设计有多实用 , 不信一起来看看吧 。
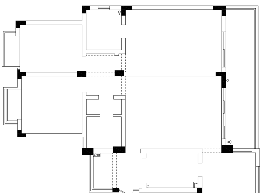
平面图
原始结构图
【难怪越来越多人“去客厅化”,看完这对夫妻的家才明白,太实用了】平面布置图
这是一套三室一厅的房子 , 根据需求改动如下:
- 1、将进门左侧的赠送空间用窗户封起来 , 改成独立的入户玄关;
- 2、把厨房右侧的空间改为餐厅 , 并调整出入方向至客厅阳台一侧 , 进而优化动线;
- 3、改小客卫为通往卧室的走廊过道扩容 , 不然空间过于狭窄 。
进门左侧是这么一个敞亮的独立式入户玄关 , 两扇大窗 , 不仅让整个空间变得采光与视野俱佳 , 而且光线经由香格里拉纱帘的过滤 , 就有了柔美又温馨的氛围 , 对比那种狭窄昏暗的过道式玄关 , 前者无疑可以让回家的心情变得更好 。
功能上 , 玄关左侧摆放了一款落地式的穿衣镜 , 加上充当换鞋凳的矮柜和右侧的低矮鞋柜等等 , 细节考虑得非常周到 。 至于低矮鞋柜的上方 , 设置了木质框架的装饰品 , 再配上挂画就可以起到一个类似端景般的效果 , 好处在于 , 可以让回家变得更有仪式感 。 (ps:为了这么好采光和视野不被遮挡 , 所以屋主才设置矮柜满足常用鞋子的基本收纳即可)
另外可以发现地面铺了灰色的地砖作为落尘区 , 既是为了便于清洁打理 , 同时也是为了铺了木地板的客厅划分空间 。
站在玄关看客厅 。
“去客厅化”设计的公共空间
公共空间采用了“去客厅化”的设计 , 所以我们可以看到这里和以往的传统布局不同 , 除沙发以外 , 传统“老三样”的另外两样 , 茶几和电视机都没有 , 包括电视墙和沙发墙 , 这样设计的好处在于 , 可以满足屋主的个性化需求 , 且布局变得更为灵活 , 富有弹性 , 比如本案夫妻俩喜欢阅读学习 , 就沙发不靠墙 , 然后定制了一组书柜 , 这样显得美观大气又实用的同时 , 可以营造一个书香雅韵的氛围 , 让家变得更有品味 , 如果有孩子 , 还能让他在耳濡目染的家居环境中 , 养成爱阅读、爱学习的良好习惯 。
- 路由器要多久关闭一次?多亏宽带师傅告诫,难怪网速变“龟速”了
- 卫生间的门应该开着还是关上?很多人做错了,难怪家里臭烘烘的
- 为什么越来越多人衣柜不做顶柜了?听老木工这么一说,我愣住了!
- 这栋别墅造型很简单,带大窗设计,住上新居后生活会越来越美好
- 原来别人家的卧室,早就不用床头柜了,难怪美得不像话
- 为什么许多人选择阳台封窗,阳台封窗方式有哪些,看完你就明白了
- 上完厕所,“马桶盖”扣上还是打开?很多人做错了,难怪有异味
- 越来越多人喜欢装修一字型淋浴房,一字型淋浴房效果图
- 诈骗|上海很多人收到医保局短信通知“更新医保凭证”?假的,别被骗了!
- 越来越多人不把冰箱放厨房了, 他们喜欢这样装,后悔知道太晚!
特别声明:本站内容均来自网友提供或互联网,仅供参考,请勿用于商业和其他非法用途。如果侵犯了您的权益请与我们联系,我们将在24小时内删除。
