我家330㎡的五层联排,光硬装就花了95w,最喜欢院子里的阳光花房

文章图片

文章图片

文章图片

文章图片

文章图片

文章图片

文章图片

文章图片

文章图片

文章图片

文章图片

文章图片

文章图片

文章图片

文章图片
一直觉得一个家就是在不断精雕细琢之下慢慢完成的 , 我们家就是如此 , 历经七个月装修 , 如今效果出来 , 就忍不住晒晒!其实 , 这已经是我们家的第三套房了 , 第一套因为面积太小 , 有了孩子就完全不够用了 , 后来就有了第二套改善房 , 虽然家人都够住 , 但是想到四世同堂的 , 还是置换了一套三层联排别墅 , 当然加上地下室和阁楼 , 总数就是五层 , 我们想着 , 这样家人都聚在一起 , 父母也能享受天伦之乐 , 这才是我们这些做孩子最大的心愿 。 不过虽然房子的面积大 , 但相应的装修费也不低 , 我们家330㎡的面积 , 光硬装就是95万 , 加上后期软装 , 可是贵的很 。 不过想到效果出来确实不错 , 也就觉得值了 , 尤其是院子里的阳光花房 , 成了我们全家的最爱 , 下面我就给大家介绍一下 。
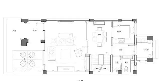
户型图 。
这个是一楼的 , 餐厅朝客厅方向扩展了六十厘米 。
还有是二楼的 , 儿子房间做了错层 , 还有一个迷你的小书房 , 当然父母也住在同一层 。
此外还有三楼 , 就是我们的主卧 。
接着是地下层 , 做了办公区还有西式厨房等 , 并且我们家最喜欢的阳光花房也在这里 。
最后就是阁楼的平面图了 。 我们把所有的平面图都放出来 , 就是为了给需要的朋友做个参考 。
玄关图 。
然后我们就可以看来实景了 。 首先是入户玄关了 , 古铜色的大门非常大气 , 左边则是封顶的鞋柜 , 收纳空间很足 , 右边是做了石膏造型的墙面 , 层次感非常丰富 。
- 晒晒80㎡的两居室,超级漂亮,恨不得每天都弄3次卫生!
- 晒晒我家92平新房,装修花费22万,厨房门估计很多人没见过!
- 我家203㎡大平层,全屋70万装修大气极了,衣帽间老婆最爱,晒晒
- 为什么不建议把冰箱放在厨房里?因为我家冰箱,在厨房里放了三年
- 晒晒130㎡的小三室,花了50万,三口之家,超级漂亮!
- 50㎡小院,亲手打造热带风花园,宅在家也像在度假
- 62岁退休阿姨晒出独居照:74㎡复古风新家,活出很多人羡慕的模样
- 83㎡极简风小家,细节设计个性又巧妙,行业热门装修风格
- 90㎡两室两人新家,全屋隐形门
- 170㎡新房装修,装修耗时一年,花费50万,这效果看看如何
特别声明:本站内容均来自网友提供或互联网,仅供参考,请勿用于商业和其他非法用途。如果侵犯了您的权益请与我们联系,我们将在24小时内删除。
