杭州50岁独居大叔的美式雅居,200㎡空间诠释温馨,一个人也不孤单

文章图片

文章图片

文章图片

文章图片

文章图片

文章图片

文章图片

文章图片

文章图片

文章图片

文章图片

文章图片

文章图片

文章图片

文章图片
前言:业主是一位50岁的大叔 , 孩子已经长大成人 , 爱人多年之前因病离开了人世 。 但是叔叔选择一个人生活并没有再婚 。
把孩子抚养长大 , 孩子也有了自己的小家庭之后 , 业主开始真正的投入到自己的生活之中 , 想要再重新过一回自己想要的生活 。
业主在杭州买了一套200平方米的三居室 , 虽然日常只有一个人生活 , 但是整个空间被打理得井井有条 , 充分彰显出业主的生活品味 。
房屋户型:三室
房屋面积:200平方米
装修预算:110万
所在城市:杭州
设计师:张嘉
主要建材:天然大理石材、烤漆玻璃、天然实木木皮、超耐磨地板、人造石
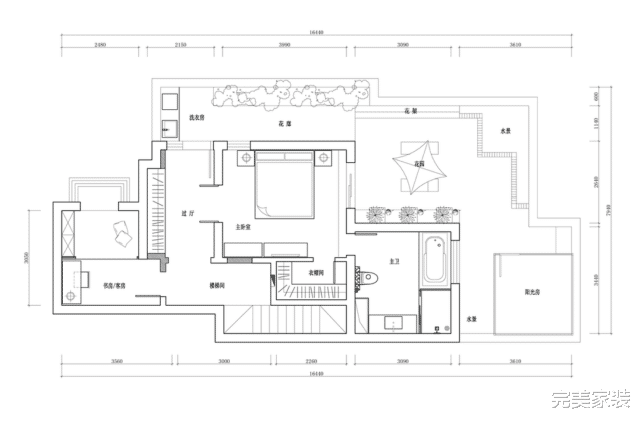
【户型图】
【杭州50岁独居大叔的美式雅居,200㎡空间诠释温馨,一个人也不孤单】整个空间的面积非常的宽敞 , 但是功能区的布局不合理 , 日常空间动线比较杂乱 。 对于业主一个人来说 , 存在较多的不足和缺点 , 全屋缺少足够 , 而且系统的储物空间 。
改造过后 , 对整个空间动线进行重新优化 , 主卧之中会画出独立 , 而且完整的收纳空间 , 从而满足业主不同的使用需求 。
【玄关】
设计重点:空间造型感极强
玄关区非常注重造型感的塑造 , 因为玄关是打开家门的第一眼 , 要给业主带来足够放松和清爽的视觉体验 。
所以在门口的走廊还专门设计了自然端景 , 各种新鲜的绿植巧妙点缀出空间的生机和活力 。
- 男性保养养生的十大方法 50岁男人如何养生保健
- 70后阿姨晒出独居小家,37㎡一居室温馨舒适,生活清闲又自在!
- 90后女主独居42㎡小宅,豪宅范儿十足,网友:是理想中的生活!
- 杭州夫妇的135㎡新家,优雅浪漫的意式轻奢风格,高级感已经藏不住
- 丹麦女主的独居生活:66㎡的小家,卫生间比卧室还要大!岁月静好
- 现在杭州失踪来惠利女士家已贴封条。为何家属报警时,不贴封条
- 90后姑娘放弃北京的工作,回乡买40㎡小宅独居,她很享受这种生活
- 95后姑娘买下48㎡的小家独居,全屋大白墙、不吊顶,舒适又惬意!
- 发现一位50岁阿姨的家,层高5米,卧室藏在上面,那叫一个高级
- 140㎡现代法式风,合并两室变主卧大套间,一人独居让人羡慕不已!
特别声明:本站内容均来自网友提供或互联网,仅供参考,请勿用于商业和其他非法用途。如果侵犯了您的权益请与我们联系,我们将在24小时内删除。
