
文章图片

文章图片
【苏州二胎家庭的高品质之家,180㎡空间简约有序,那叫一个舒服】

文章图片

文章图片

文章图片

文章图片

文章图片

文章图片

文章图片

文章图片

文章图片

文章图片

文章图片
苏州二胎家庭的高品质之家 , 180㎡空间简约有序 , 那叫一个舒服
业主是一对年轻的夫妇和一双可爱的儿女 。 一家人对生活的品质要求非常高 , 尤其是家里有了宝宝之后 , 更需要一个系统完善的收纳空间 。
在繁忙的都市生活之中 , 设计师充分寻求生活和家居的完美结合 , 让业主一家人的生活不断向高品质的方向发展 , 给业主带来更多的舒适感和体验感 。
业主的这套房子面积180个平方 , 位于寸土寸金的苏州市中心 , 地理位置还算优越 , 设计师充分发挥房屋的户型优势 , 打造出一个更加简约 , 但是秩序井然的理想空间 。
房屋户型:三室
房屋面积:180平方米
装修预算:55万
所在城市:苏州
主要建材:线板、木皮、喷漆、大理石、黑铁漆、铁件、玻璃、木地板、壁纸
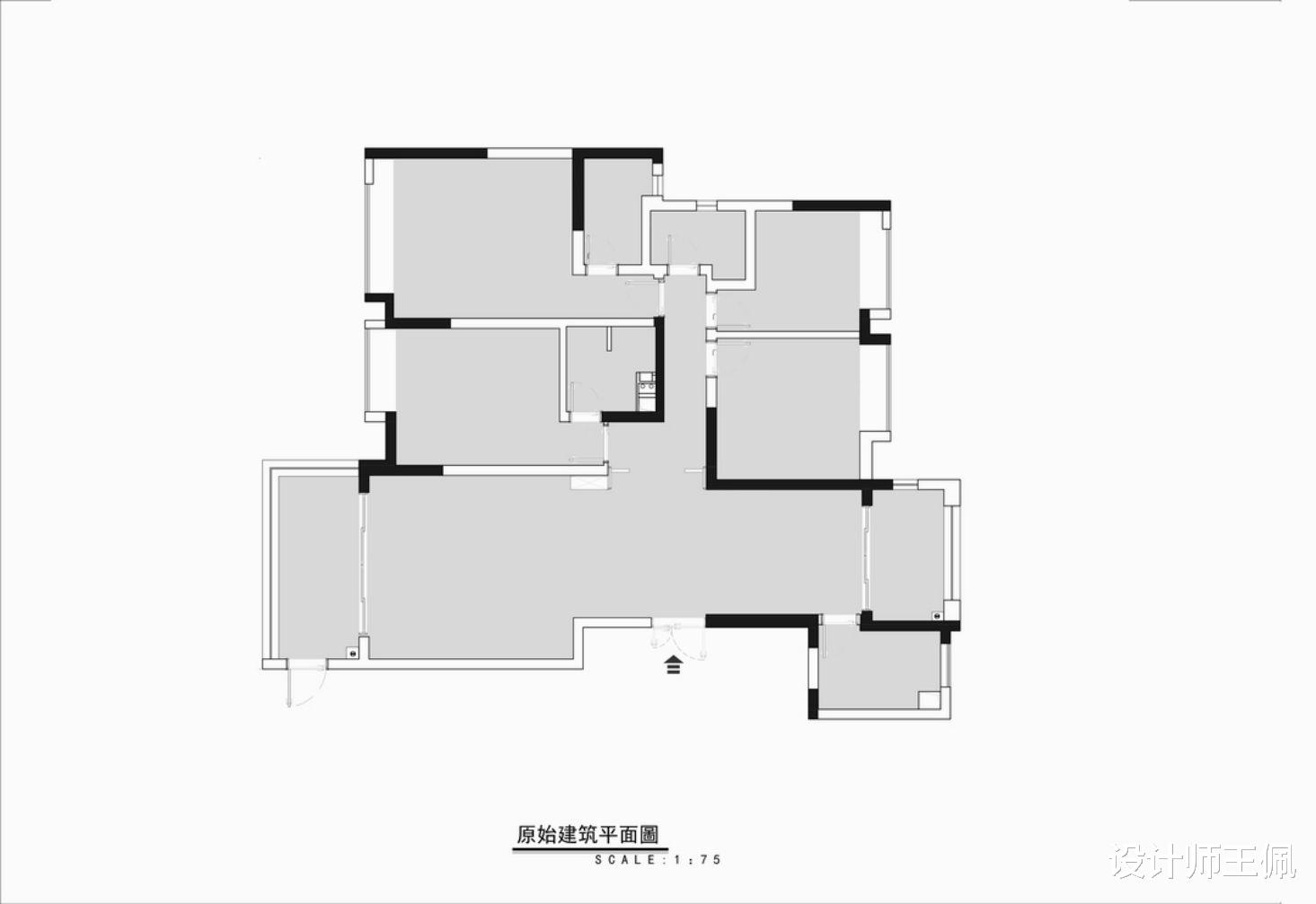
【户型图】
房屋户型比较规矩 , 对于四个人来说比较的舒适 , 所以硬装上并不需要太多的感动 , 但是在软装和细节上进行细致的规划升级 。
将原本闲置的阳台纳入到空间之中 , 扩充空间的使用面积 。 对每一个功能区进行必要的规划和重组 , 满足日常多功能的使用需求 。
【玄关】
设计重点:量身定做让空间更规整
玄关的柜子简洁明了 , 可以按照空间的尺寸以及业主日常的使用频率进行现场定制 , 开放式和封闭式的格子相互组合 , 让空间更加的完整和全面 。
入户口的走廊为了避免正对着卧室 , 可以利用长虹玻璃作为隔断 , 让空间既保证独立私密 , 又不失精致美观 。
【客厅】
- 家庭采暖系统理想管材——PE-RT地暖管
- 我家75平房子,普通家庭的经济实用装修,收纳简直一绝
- 二胎后,最不能忍受的是什么为什么
- 吃过亏才知道:家庭装修坚持“8不网购”原则,家里没矿别乱来!
- 一个家庭最好的模样:厨房有声,书房有香,卧室有话
- 80后的二胎妈妈,在产后怎样才能从胖妈逆袭变辣妈呢
- 家里挂什么画好 家里挂这样的画才能为家庭增光添彩
- 二胎宝妈在冬季坐月子期间可以穿收腹衣吗如何在三个月减重35斤
- 亲测好用家居清洁好物盘点,好用的家庭清洁剂都在这里。
- 科普动起来丨注意!事关每个家庭的安全
特别声明:本站内容均来自网友提供或互联网,仅供参考,请勿用于商业和其他非法用途。如果侵犯了您的权益请与我们联系,我们将在24小时内删除。
