
文章图片

文章图片

文章图片

文章图片

文章图片

文章图片

文章图片

文章图片

文章图片

文章图片
装修要以实用性为主 , 这个道理相信每个人都懂 。 可如何才能做到实用呢?在我看来 , 其实最基础的 , 就是要将每一块空间都合理利用起来 。 也只有这样 , 才能做到不浪费 , 才能充分体现每一块空间的价值 。
像下面这套案例就完美诠释了什么才叫实用 , 即便屋主是一个人居住 , 也规划了大量的储物空间 。 同时 , 当客厅采用下沉式设计之后 , 不仅为空间带来了趣味 , 也极大提高了空间的安全感 , 非常值得大家来参考 。
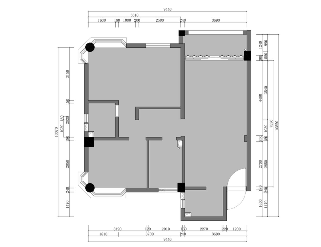
平面结构图
本案来自广州 , 面积107㎡ , 两室两厅两卫的格局 。 由于是一套旧宅 , 屋主对新家的需求 , 则希望空间是具有设计感的 。 同时 , 考虑到有大量的手办需要收纳 , 所以储物空间也要充足 。 再一次 , 就是希望次卧能具有多种变化 , 既可用来健身 , 后期也不影响改成儿童房 。
原户型虽说是一套常见的结构 , 但空间缺陷也非常多 。 比如入户缺少收纳、厨房面积小、过道和主卧面积分配不合理等等 。 因此 , 结构上也做了大量的调整 。
平面方案图
空间布局改造如下
1、在入户门可调整的情况下 , 改成向外开 , 释放出鞋柜空间 。
2、餐厅增加西厨区 , 弥补厨房的空间功能 。
3、南阳台纳入室内 , 并采用下沉式设计客厅 。
4、调整主卧进门位置 , 并给主卫做平移处理 , 为空间延伸出一个衣帽间 。
5、外卫做干湿分离 , 并调整次卧门洞位置 , 让面积得到充分利用 。
改造前
改造前 , 和大多数老房一样 , 简单地刷白 , 大量的木饰面 , 看起来既复杂又压抑 。 当然 , 最大的问题 , 还是面积分配不合理 。
入户
当入户门调整成外开门之后 , 则在距离进门一米的位置 , 设计了一组分体柜 。 这样既解决了基本的收纳 , 又方便了小物品的随手摆放 , 并且还弱化了拥挤性 。 同时 , 鞋柜与进门之间的镜面设计 , 也在拓展空间感的情况下 , 提升了进出门的仪式感 。
餐厅【看了他家,才知道什么叫实用!客厅做下沉式,储物空间多到爆】
利用部分过道空间摆放的餐桌与岛台 , 看似占据了动线空间 , 实际上通过舒适性 , 还是可以得到保障的 。 而在后疫情时代 , 岛台上的洗手台 , 也算是标配了 。 既方便了日常的清洗 , 又方便了进门洗手 。
- “有些人,老了才懂:远离家庭内耗,福气才会越来越多”你怎么看
- 日本这么多娱乐综艺节目,哪些让人看了大吃一惊的?
- 看看老公花600租的烂房子,又脏又破像公厕,估计你看了都害怕!
- 装过3套房子才醒悟,想要省钱,这5个地方没必要投入太多
- 竹升面要怎么煮才好吃
- 轻芝士蛋糕怎么做才不会变形?
- 这样吃蔬菜沙拉才能减肥
- 马桶为什么有两个按钮?用了二十多年才知道
- 去了日本才发现,本以为“很会”的“生活技能”,一直是错的!
- 广东对阵广厦,为什么杜峰第一节就派上了之前垃圾时间才打的徐杰?有什么特殊计划吗?
特别声明:本站内容均来自网友提供或互联网,仅供参考,请勿用于商业和其他非法用途。如果侵犯了您的权益请与我们联系,我们将在24小时内删除。
