老公坚持在过道打柜子,完工后我懵了,电视墙最抢眼,谁见过!

文章图片

文章图片

文章图片

文章图片

文章图片

文章图片

文章图片

文章图片
我和老公是大学同学 , 毕业后就结婚 , 没房没车 , 真正的裸婚一族 , 不过老公为人踏实 , 工作努力又肯干 。 老公为了给我一个安稳的家 , 毕业出来工作了两年 , 赚到了资本 , 老公就辞掉了铁饭碗的工作 , 选择了自己创业 。 虽然刚开始创业时特别辛苦 , 压力也会加大 , 但只要熬过一段时间 , 公司就会慢慢的走向正轨 。 这几年的打拼 , 看到老公的事业越来越好了 , 我们也赚到了第一桶金 , 就在去年五月份终于买到了我们人生的第一套新房 , 结束了五年的租房生涯 。 房子是一套标准的110㎡三房二厅的户型 , 空间上基本上满足了我们日常生活的需求 。 买了房就想快点的装修入住 , 由于买房花费了大量的资金 , 所以我们没有请专业的设计师 , 再加上又是我们第一次经历装修 , 没什么经验 , 所以只好自己找资料 。 在网上经常看到很多网友晒了很多好看的装修案例 , 而且还附带了装修经验 , 从中让我们学到了很多有关装修的知识和经验 。 最后我们找了熟人装修 , 出图纸 , 而设计可把我和老公绞尽脑汁才能想出来 。 经过三个月的时间 , 装修才完工 , 在美式风格的表现下全屋漂亮极了 , 效果特别的温馨 , 很有家的感觉!忍不住晒晒 , 当初设计的时候 , 老公坚持在过道打柜子 , 完工后我懵了 , 尤其是电视墙最抢眼 , 谁见过?下面我也将我家装修出来的效果反馈给大家 , 希望大家看了能够喜欢!
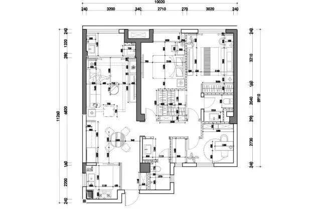
给大家提供平面图是为了大家能更快的了解我家各个空间的关系 。 从平面图平看 , 整体布局规划挺合理的 , 对于我们来说 , 这个布局很方便我们居住 。
入屋处设计了玄关 , 进门的右手边是卡座和鞋柜 , 地面用了深色的瓷砖 , 这样给玄关到屋内有个缓冲的作用 , 也显得很耐脏 。 经过玄关就到餐厅 , 用了圆形的餐桌 , 右边墙打满了餐边柜 , 而冰箱、烤炉、微波炉都是嵌入到餐边柜里的 , 节省空间又实用 , 而有一个柜子中间留空主要是做备餐台 , 墙面打了马赛克 , 和餐厅很搭配 。 天花做了圆形的吊顶 , 灯光营造很温馨 , 灯饰用了风扇灯 , 美观又实用 。
厨房是油烟很多的地方 , 所以在装修上用了仿古的瓷砖 , 这样的色调很耐脏 , 几乎是看不到油烟 。 而厨房使用了U形的布局 , 厨房左边切菜 , 右边洗菜 , 使用挺方便的 。
白色的橱柜搭配麻面的石英石 , 显得干净整洁 。 厨房的空间显得紧凑些 , 但很实用 。 洗菜的地方还特意抬高 , 有利于洗菜时溢出来的水很容易排干 。
- 无数中国家庭,在装修上都会犯的通病,52岁退休工头指出错误
- 胶原蛋白填充的效果?
- 食出性感下半身美女
- 蝴蝶骨在哪
- 太空沙怎么做
- 15大女星共迎尖下巴时代
- 按摩10个穴位 让你快速减肥
- 直接消灭脂肪的八种方式
- 117平现代风三居室入户单独放置换鞋凳,将电视墙做在过道立面
- 空调内机为什么滴水
特别声明:本站内容均来自网友提供或互联网,仅供参考,请勿用于商业和其他非法用途。如果侵犯了您的权益请与我们联系,我们将在24小时内删除。
