|94平现代二居室,把业主想要的“简单”搬到了家里

文章图片

文章图片

文章图片

对于家业主李阿姨有自己的理念 , 一家人在一起和睦其乐融融就是这么简单 。 对于生活也是一样 , 简单幸福就好 。 把她想要的“简单”搬到了家里 , 把她的想法改良了搬进了自己的家 。 可以说让李阿姨想要的家具象化 , 而李阿姨使得清新雅居有了新的生命 。
客厅装修不仅是业主待客的地方 , 也是装修业主的一个脸面所在 。 如果在装修客厅的时候没有注意其中的要点 , 那么也就会导致最后的装修效果不是很好 , 这样的问题也就会让装修业主很是头疼 。 在客厅色彩搭配上各位装修业主一定要多注意 , 不要一昧的添加过多的色彩元素 , 使用过多会导致客厅整体装修效果下降 。
大气明快的现代风格 , 搭配清爽惬意的 , 奠定了整个空间简约别致的基调 。 给人一种心情平静的感觉 。
卧室是休息区 , 在装修里面属于家庭当中安静的角落 , 所以该部分装修主要塑造一种静谧的氛围 。 一张床靠墙而放 , 再配上衣柜和窗帘就很完美了 。
次卧设计因为木色材质而显得特别地简约自然 , 清新舒适 。 到顶的定制实木衣柜 , 储物功能更家强大 , 让整个空间更加简洁
主卧的设计清新雅致 , 淡淡的清新在这个空间铺展开来 , 让人感觉舒适而温柔 , 与原木系列进行搭配之后 , 又渲染出一股优雅迷人的气质 。
卫生间最好要装防水式的插座 , 或者加上一个外壳 , 用来防水 。 地漏要装在最低点 , 防水施工的时候最适合的方法就是涂抹防水法 , 浴室防水的高度不要少于180cm 。
卫生间虽小 , 但同样做了干湿分离 , 这样的卫生间才会干净舒适 。
餐厅是家居生活的心脏 , 不仅体现了美观 , 更体现了实用性 , 整体性 。 在布置餐厅的时候 , 可以使用木制的咖啡色餐桌 , 虽然表面看起来呆板 , 但是带来的效果却是非常生动的 , 简单的长方桌 , 条纹椅 , 让餐厅充满原始自然的味道 。
餐厅白色的餐桌 , 再加上艺术清新的花卉 。 清新自然闲适的氛围悠然而生
家中的装修 , 最看重的要数厨房了 , 拥有一个精心设计、装修合理的厨房会让你变得轻松愉快 。 厨房装修首先要注重它的功能性 。 要打造温馨合理的厨房才是王道!
厨房原木的现代风情 , 米白色的墙砖搭配木色橱柜 , 自然大方 。
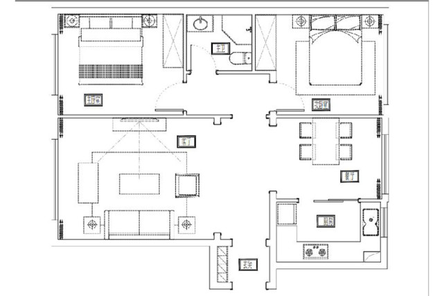
【|94平现代二居室,把业主想要的“简单”搬到了家里】案为两室两厅的户型 , 户型合理 , 格局方正 , 通透设计朝阳主卧参考性强 。
特别声明:本站内容均来自网友提供或互联网,仅供参考,请勿用于商业和其他非法用途。如果侵犯了您的权益请与我们联系,我们将在24小时内删除。
