乡住免费图纸土建造价参考90万,面宽18.8m×进深13.1m 二层新中式风格别墅

文章图片

文章图片

文章图片

文章图片

文章图片
项目概况
项目位置丨湖南常德图纸编号丨000265建筑尺寸丨面宽18.8m , 进深13.1m建筑面积丨469.00㎡占地面积丨203.00㎡官方指导价 | 土建90万建筑高度丨9.04m建筑风格丨新中式结构形式丨砖混结构△总平面示意图
01.
丨建筑效果图丨
△东侧效果图
△东南侧效果图
△鸟瞰图
△南侧效果图
△北侧效果图
△局部效果图
02.
丨平面布局图丨
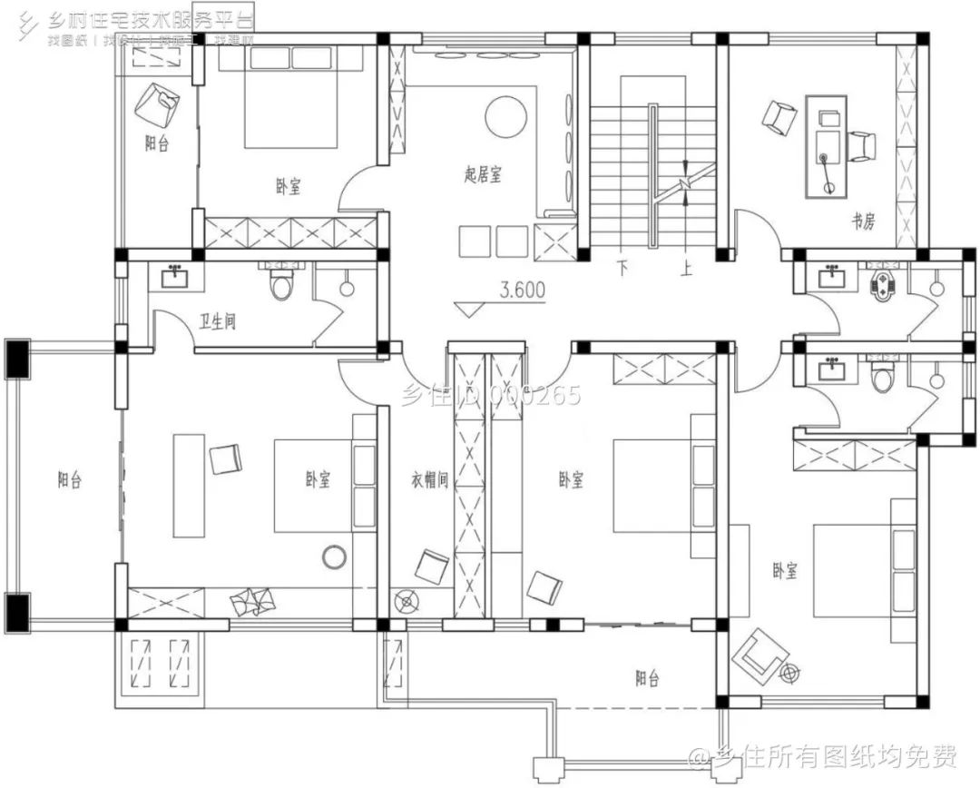
建筑布局:五室、二厅、五卫、一厨房、二储物、二衣帽、一书房、一茶室/棋牌、二休闲区、一娱乐室、三阳台、一露台
△一层平面图
△二层平面图
△阁楼层平面图
03.
丨项目点评丨
适宜地域南方/北方
适用指数高
适用家庭 家中有老人和孩子 , 喜欢新中式风格
别墅户型 5室、2厅、5卫
图纸内容建筑、结构、给排水、电气、暖通
建筑共有二层+阁楼层 , 一层以待客休闲为主 , 南侧预留了较大面积的客厅、茶室和棋牌室区域 , 通过中部吧台设计进行隔断;东侧设置了1间长辈套房 , 搭配衣帽间和独卫使用 , 两个单人床设计 , 满足长辈睡眠浅互相不影响的需求 。 二层以休闲办公为主 , 共设置4间卧室 , 其中南侧的卧室套房 , 搭配衣帽间、独卫和阳台;西北侧增设起居室和书房功能 , 极大丰富整层的多功能性 。 阁楼层以休闲娱乐为主 , 中部增设储物间和娱乐室使用;西侧的露台区域 , 丰富室外的晾晒和休闲功能 。 建筑为新中式风格 , 立面采用白色真石漆 , 搭配外墙青石砖和红棕色窗框 , 使整体材质的简洁感与立面造型的层次感完美融合 , 塑造庄重的大家风范 。 建筑主体与东北侧的自家老宅风格保持和谐统一 , 并通过大量矩形构造及装饰展现建筑的逻辑感与几何美感 , 凸显其中式建筑文化的独特韵味 。 设计师在庭院内部增设了铁艺栅栏工艺 , 通过小桥可达湖中亭 , 使得环境和建筑融合更为紧密 。
【乡住免费图纸土建造价参考90万,面宽18.8m×进深13.1m 二层新中式风格别墅】
- 新房装修容易犯下的33条遗憾,我家踩中8条,如今入住苦不堪言!
- 95平米三居室,一进门就被迷住,全屋太温馨、太漂亮了
- 三种坏情绪是癌的“先遣将”!快看看你有没有被偷偷缠住!摆脱方法奉上~
- 这些新式设计千万别做,入住后会发现全是鸡肋,真是“一言难尽”
- 房产|买自住房考虑哪些因素
- 基数|多地调整住房公积金缴存基数上下限
- 39岁阿姨的独居生活,住在29㎡的蜗居里,自由自在真幸福
- 那些入住后才明白鸡肋的装修,你家里占了几样?
- 一人独居80㎡,入住一年后,决心简单改造,如今生活过得有滋有味
- 家里的扫把坏了别扔,用这个旧拖把,简单改造,变成免费的晾衣架
特别声明:本站内容均来自网友提供或互联网,仅供参考,请勿用于商业和其他非法用途。如果侵犯了您的权益请与我们联系,我们将在24小时内删除。
