
文章图片

文章图片

文章图片

文章图片

文章图片

文章图片

文章图片

文章图片

文章图片

文章图片

文章图片

文章图片
【杭州80医生的独居生活:虽然只有58㎡,但装修简约大气,格调十足】

文章图片

文章图片
前言:业主是一位80后 , 平时工作的时候 , 业主是一名严肃认真的医生 , 私下里的他还是一名爱玩爱笑的大男孩 , 平时的生活也非常简单 , 更喜欢一个人在家享受独处的时光 。
业主的家是一套58平方米的小户型 , 定位在浙江杭州 , 虽然空间面积比较小 , 但是业主一个人生活起来还是非常的自由 。 通过这次改造 , 业主不仅改善了居住环境 , 也让生活方式得到了细微的调整 。
房屋户型:小户型
房屋面积:58平方米
装修预算:20万
所在城市:杭州
主要建材:烤漆玻璃、天然木皮、大理石材、特殊磁漆、进口耐磨地板
【户型图】
整个房屋的面积虽然相对小一些 , 但是空间层高有所保证 , 所以业主的起居生活还是非常的轻松和简单 。
业主在家平时很少做饭 , 所以只保留了基本的厨房功能 , 对于餐厅也进行了弱化处理 , 这样可以将空间进行有效的开发和利用 , 满足业主更加多样化的生活需求 。
在软装的搭配上也非常的丰富 , 尽量选择饱满 , 而且亮丽的色彩进行填充 , 让空间避免压抑感 。
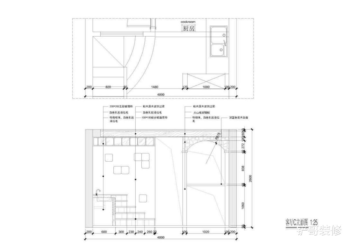
【客厅】
设计重点:空间得到横向拉伸
考虑到卫生间的使用频率比较高 , 所以将卫生间调整到楼梯一侧 , 通过后元素的点缀形成独特的空间亮点 , 也让客厅得到了横向的拉伸 。
整个空间选择的元素非常的丰富 , 这样不仅视觉上让空间格外的饱满 , 而且也让每一个功能区都拥有了自己的个性特色 。
- 注意缺陷多动障碍|上海一医院“学习困难”门诊火上热搜,网友:“相见恨晚”!
- 睡觉打呼噜太响?医生:这是病,得治!
- 看病|上海8月开始,看病配药可用医保家庭共济资金
- 落枕,是颈椎发来的“警告”!附疼痛科医生的缓解方案
- 杭州佰映设计|农贸市场设计的摊位规划技巧分享
- 人生的第一套新房,忍不住晒晒!家人满意极了,全屋挑不出毛病!
- 原卫生院老院长:“二舅”患脊髓灰质炎,打针医生已去世
- 拼多多医药馆是正品吗?品牌馆入驻条件有哪些?
- 热搜第一!女生每天跳操2小时致肌肉溶解,医生紧急提醒
- 杭州办公室装修选什么颜色?
特别声明:本站内容均来自网友提供或互联网,仅供参考,请勿用于商业和其他非法用途。如果侵犯了您的权益请与我们联系,我们将在24小时内删除。
