138平中式三居室,既有苏式生活的贵气与精致,又含中式的美

文章图片

文章图片

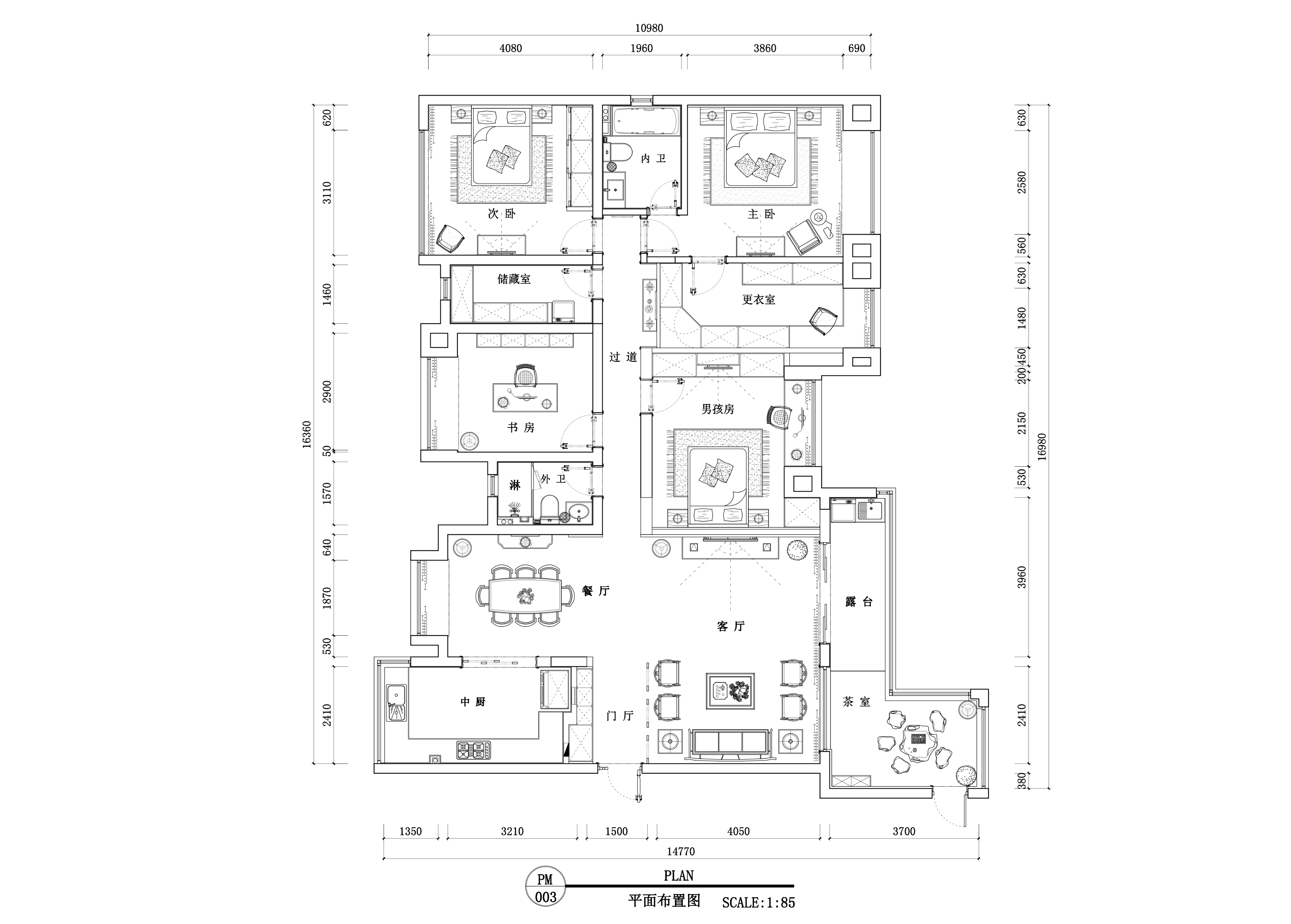
这个138平空间设计合理 , 装饰得当 , 传递一种低调奢华的生活方式 , 既有苏式生活的贵气与精致 , 又恰到好处地体现出现代中式的美 。
南阳台在保留洗衣区的同时 , 设置品茶区 , 增加浓浓的中式禅意 。
扩大
在卧室内设计一个宽大的落地窗户 , 这样可以使房间看起来更加明亮 。 如果需要的话我们可以装修一些罗马柱 , 在建筑墙面中部用一些腰线进行装饰 。
主卧 , 书房等处多采用深色地板 , 墙面使用深色木饰面 , 体现空间的华贵 。
将北阳台敲除 , 扩大厨房面积 , 满足业主的各种料理需求 。
【138平中式三居室,既有苏式生活的贵气与精致,又含中式的美】原本结构户型厨房、餐厅位置较小 , 功能布置局促 。 空间利用率不高 , 现将结构更改后 , 在进门处设置整面装饰柜 , 方便业主进出的衣帽收纳与日常物品的收纳摆放 。
- 350平现代风五居室储物时尚两不误,拥有属于自己的一片天空
- 107平北欧风让人觉得惬意和慵懒,居住在其中就不想不出来啦
- 选购最适合的平板音响的方式
- 挂烫机和电熨斗
- 120平米三室两厅终于入住,这才是平常人家精致家居实景吧
- 淘宝补接单平台是真的吗?补单平台怎样选?
- 个人跨境电商做哪个平台?其各有什么优势?
- 220平复式,家里所有储物柜都设计成内嵌式,果然整洁多了!
- 内做跨境电商哪个平台好?五大平台介绍
- 为什么家装不能全用4平方的电线,选用多大电线合适,看完就懂了
特别声明:本站内容均来自网友提供或互联网,仅供参考,请勿用于商业和其他非法用途。如果侵犯了您的权益请与我们联系,我们将在24小时内删除。
