30㎡小户型大设计,30㎡秒变70㎡,花9万元快活住新家!

文章图片

文章图片

文章图片
【30㎡小户型大设计,30㎡秒变70㎡,花9万元快活住新家!】

文章图片

文章图片

文章图片

文章图片

小户型适合过渡性居住和经济压力较低的家庭 , 大伙儿买不上大户型 , 就纷纷转向小户型市场 。
接下来跟大伙儿分享一套30㎡的小公寓装修 , 面积不大 , 却榨干每一寸空间将其发挥使用价值 , 各个功能都完善到极致 。
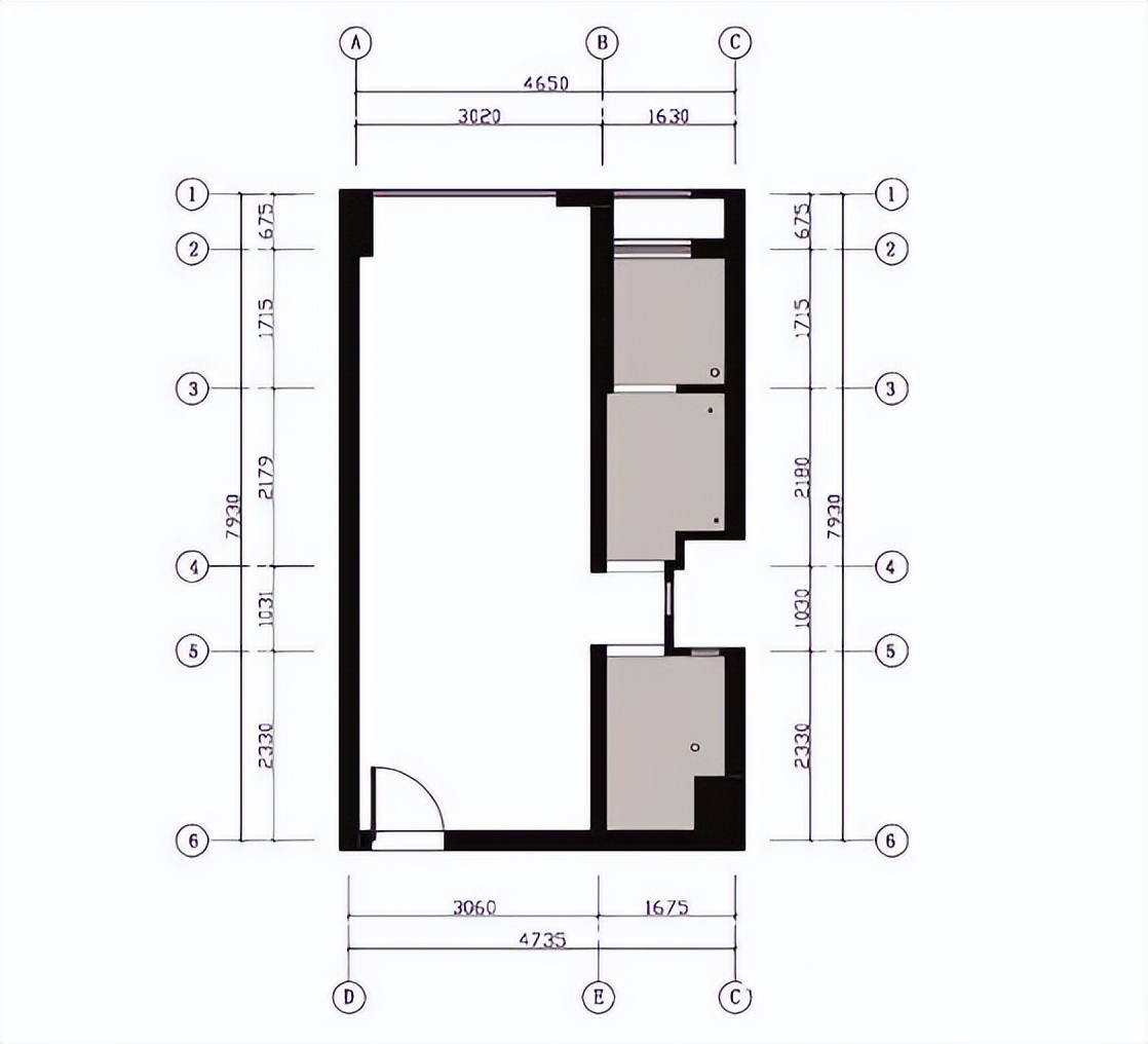
原户型算是方方正正的套内30㎡公寓 , 但也存在着空间狭小 , 分区不明显 , 承重墙过多很难通过墙体改造来实现空间扩大化等问题 。
改造后的户型图 , 唯一改动的地方是打通阳台与厨房隔墙 , 动线更加的流畅 。 空间长时间为两人居住 , 通过全屋定制解决日常收纳 , 保持空间的整洁 。
入户进门空间有限 , 但也被好好利用 , 挂衣钩、换鞋凳、穿衣镜、置物架一应俱全 。
两把折叠椅灵活实用 , 家里有客来访可以增加座位 , 不需要就收纳在墙上 , 丝毫不占用空间 。
餐厅就在入户另一边 , 定制了卡座组合柜 , 同时兼具餐边柜和鞋柜的功能 , 也算解决了收纳问题 。
对小户型来说 , 卡座形式还是比较实用的 , 节省了靠墙的空间 , 同时结合储物柜 , 提高居家生活的便利 。
卫生间采用2扇小折叠门 , 不用担心门的开向会妨碍动线 。
卫生间利用一大面镜柜来扩大视觉效果 , 尽可能利用墙面来形成置物架结构 , 实用又美观 。
利用浴帘的干湿分离形式 , 不占用过多空间 , 有防水条的阻挡 , 也不用担心洗个澡会出现水漫金山的现象 。
榻榻米与衣柜结合 , 定制设计的最大优点就是将空间利用最大化 。
靠窗设置了简易的写字台 , 日常办公休闲都很适合 , 写字台下方为镂空设计 , 提高使用的舒适感 。
考虑到屋主有阅读习惯 , 定制了大面书柜 , 开放式设计存储方便 , 可收纳可展示 。
拆除了原厨房与阳台的隔断 , 让厨房的操作空间更宽敞 。
全屋的小白砖让狭隘的空间更加的透亮 。 金属架和洞洞板结合 , 保持厨房空间整洁不凌乱 。
由齐家小编编辑 , 图片部分来源互联网 , 侵删!
关注我才能装好房!有任何装修问题都可以私信小编 , 同时可免费赠送《装修一本通》电子版或100套案例图库 , 让你家装修少走弯路!!!
- 华润昆仑御148㎡ | 新中式风格自然淡雅 诗意端庄的浪漫
- 95㎡北欧风新家,一进门就令人心动!卡座设计省空间又漂亮
- 50平米小户型欧式风,客厅加个地台,好看又实用
- 120m2现代质感小三房:酷中带暖,每个角落都是细节!
- 小舅子结婚,妻子送全屋装修,丈夫:即便AA制,你也不能这样做
- 这个102㎡的家,不仅只有生活的一日三餐,还要有看得见的诗与远方!?
- 个体入驻抖音小店流程是什么?保证金是多少?
- 坚持极简主义装修,280㎡装完太高级,仅凭一个客厅就圈粉无数
- 快手小店退款不退货服务规则修订
- 拼多多小额打款要手续费吗?拼多多小额打款如何打款?
特别声明:本站内容均来自网友提供或互联网,仅供参考,请勿用于商业和其他非法用途。如果侵犯了您的权益请与我们联系,我们将在24小时内删除。
