|72㎡也能做3房2卫,简约风格设计真温馨,虽然有些挤却特别实用!

文章图片

文章图片

文章图片

文章图片
【|72㎡也能做3房2卫,简约风格设计真温馨,虽然有些挤却特别实用!】
文章图片
对于大多数朋友来说 , 都想让小家不仅能够满足全家人的居住要求 , 同时能够有间独立的书房或者衣帽间 , 而这套72平米的小房子统统拥挤 , 3房2卫虽然有些挤 , 却格外实用也特别温馨 。 下面就和“未来家装网”一起来看看这套72㎡也能做3房2卫 , 简约风格设计真温馨 , 虽然有些挤却特别实用!
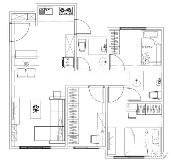
先来看看本案的户型图 , 没有阳台的户型却拥有了三间卧室和两个卫生间 , 进门就是开放式的厨房 , 方正的户型加上合理的空间布局 , 不需要过多的改造就实现了三居室的功能 , 不得不佩服开发商的设计能力 。
进门左手边的墙面定制了一组到顶的白色大鞋柜 , 同时也兼具了家中物品的收纳功能 。 鞋柜的底部留空 , 方便放置一些经常穿的鞋子 , 也能保证鞋柜内的通风换气 。
厨房位于进门的对面 , 为了让室内看起来更加宽敞 , 所以采用开放式设计 。 厨房的面积也非常紧凑 , 但基本的烹饪功能都能满足 。
进门右手边放置了一组四人位的小餐桌 , 隔断空间的同时 , 也能完全满足家人的用餐要求 。
整体的硬装部分十分简洁 , 简约风格设计效果看起来很接地气 , 关键是家居氛围特别温馨 。
墙面刷上乳胶漆 , 素色瓷砖装饰的地面 , 虽然客厅没有阳台 , 但大大的落地玻璃窗还是能够提供充足的采光效果 。
浅蓝色乳胶漆沙发背景墙 , 淡绿布艺沙发 , 没有高级的装修效果 , 却有着格外舒服的家居体验 。
为了避免小空间的压抑感 , 客厅里没有定制任何的储物柜 , 购置了一组原木色的茶几、电视柜和五斗柜 , 相同的颜色所呈现出来的视觉效果堪称完美 。 特别是电视柜和茶几 , 除了造型十分漂亮外 , 收纳能力同样令人称赞 。
主卧室的面积不大 , 原木色实木床架只能靠窗摆放 , 床头背景墙的乳胶漆颜色和客厅沙发背景墙相同 , 简约温馨特别有生活气息 。
床尾靠墙位置同样放置了一张半人高的电视柜 , 再摆上体积小巧的梳妆台 , 功能性和装饰性都非常不错 。
儿童房没有过多设计 , 购置了一张底部带收纳空间的单人床 , 日后如果想要改造也会更加方便 , 换上合适的床具就行 。
独立的书房兼衣帽间 , 定制墙面定制了整面墙的白色大衣柜 , 收纳能力十分强大 。 再配上一张原木色书桌 , 无论是偶尔在家办公还是学习 , 这样的设计方式都很实用 。
特别声明:本站内容均来自网友提供或互联网,仅供参考,请勿用于商业和其他非法用途。如果侵犯了您的权益请与我们联系,我们将在24小时内删除。
