农村二层轻钢别墅设计图,外观漂亮,简单大方,方便实用
----农村二层轻钢别墅设计图 , 外观漂亮 , 简单大方 , 方便实用//----
----农村二层轻钢别墅设计图 , 外观漂亮 , 简单大方 , 方便实用//----
----农村二层轻钢别墅设计图 , 外观漂亮 , 简单大方 , 方便实用//----
很多朋友都是长期在城里工作 , 只是偶尔回农村里住 , 这样建套简单大方的自建房 , 更方便实用 , 不需要花更多的心思来打扫房屋 。 下面推荐的这套二层轻钢别墅 , 户型方正 , 12x12米 , 回村建一栋相当实惠 。
本户型是二层农村别墅 , 外观简单大气 , 外墙和文化石相结合的装饰 , 富有现代气息 , 户型合理 , 采光通风良好 , 屋顶有个休闲露台 , 住起来非常的舒适、实用 , 而且整套别墅造价比较低 , 适合普遍农村地区 。
开间:12.4米
进深:12.3米
占地面积:136.7平方米
建筑层数:2层
建筑高度:7.9米
屋顶形式:坡屋顶
建筑结构:轻钢结构
一层有堂屋、客厅、餐厅、厨房、卧室、卫生间 。 双客厅的设计 , 堂屋可以摆放神位 , 客厅用来招待;餐厅面积大 , 方便家庭聚餐;有两间卧室 , 可以当成老人房和客房使用 。
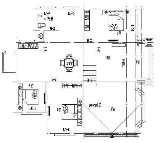
二层有棋牌室、书房、卧室、卫生间、阳台、露台 。 和亲朋好友聚会的时候 , 可以在棋牌室娱乐一下;书房外有个小阳台 , 光线充足 , 适合办公学习;有3间卧室 , 在布局上不浪费空间 , 方便收拾;露台晾晒衣物或是休闲都是不错的好去处 。
特别声明:本站内容均来自网友提供或互联网,仅供参考,请勿用于商业和其他非法用途。如果侵犯了您的权益请与我们联系,我们将在24小时内删除。
