老公不做吊顶,客厅与阳台打通,只花了15万,邻居纷纷上门请教!
----老公不做吊顶 , 客厅与阳台打通 , 只花了15万 , 邻居纷纷上门请教!//----
----老公不做吊顶 , 客厅与阳台打通 , 只花了15万 , 邻居纷纷上门请教!//----
----老公不做吊顶 , 客厅与阳台打通 , 只花了15万 , 邻居纷纷上门请教!//----
----老公不做吊顶 , 客厅与阳台打通 , 只花了15万 , 邻居纷纷上门请教!//----
房屋面积:120平
房屋类型:两室
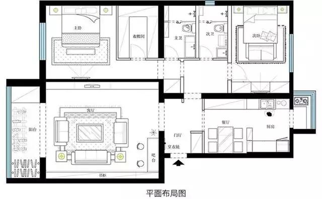
户型图
玄关
▲ 一进门 , 左手边是穿衣镜 , 右手边是鞋柜 , 鞋柜中有一个柜门拉开就是挂衣区 。 每天出门都要美美哒 , 玄关视野底部用的是一幅画作为装饰 。
客厅
▲客厅的空间看起来的特别的宽敞 , 小孩子玩得空间也会死非常的大 , 你可以看到沙发背景墙是一排白色高柜 , 与墙壁浑然一体 , 既美观又增加了储物空间 。
打通了阳台与客厅的一堵墙 , 阳台上的空间利用起来更是一眼望穿 , 可以装成一个休息室 , 看起来也是非常的宽敞 , 电视的背景墙没有做过多的装饰 , 大白墙看起来也非常的好 , 底下还有一排的储物柜 。
厨房
▲开放式厨房 , 一字型橱柜很适合空间比较小的厨房 。 将灶台放置在阳台上 , 扩大了厨房使用空间 。
餐厅
▲ 简简单单的设计搭配灯光效果显现出温馨的氛围 。
卫生间
▲主卫和次卫都采用了一半砖一半漆的形式 , 实用又大气 。
卧室
▲ 卧室的原木地板搭配浅色墙壁 , 睡在这样的卧室里 , 感觉睡眠质量都会提高 。 而且采光非常的好 , 虽然空间也是简约 , 但是住起来很是温馨 , 毕竟预算只有15万 , 装成这样 , 也是非常的棒了 。
特别声明:本站内容均来自网友提供或互联网,仅供参考,请勿用于商业和其他非法用途。如果侵犯了您的权益请与我们联系,我们将在24小时内删除。
