买了新房子之后最重要的事情就是装修了,除了需要注意很多细节之外,还要考虑到风水问题,否则装完住得也不舒心 。最近有个粉丝家合肥新房刚装修完,本来挺高兴的事,结果邻居非说面积大了,门多,风水不好,劝她赶紧改,这下她纠结了,所以发来让我们帮她看看 。
面积:111平
半包价:12万

文章插图
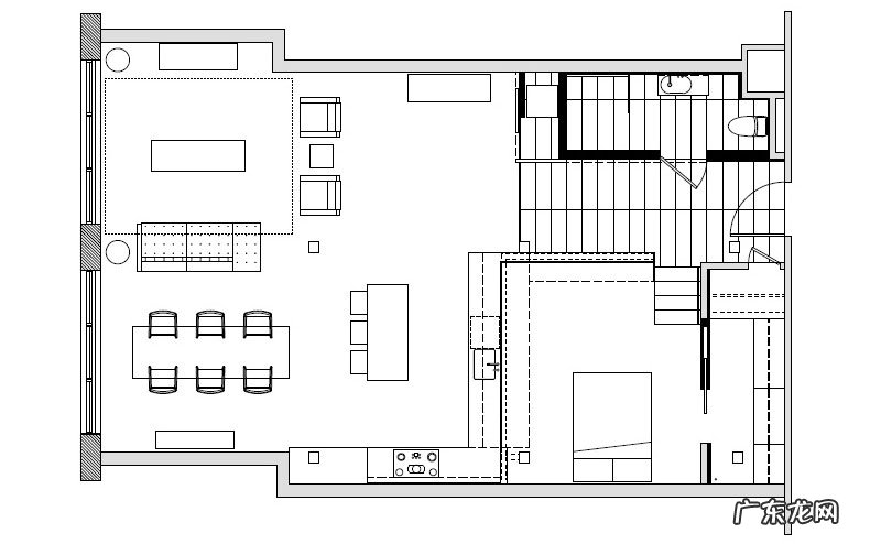
从户型图可以看到,卧室的隔壁就是厨房,橱柜加上玄关柜紧紧地将卧室包围在中间,吃睡相邻,从风水角度看的确不太好,所以很多人家里都不会这样设计 。

文章插图
【房子太大是好是坏怎么装都很空旷到处都是门风水差到不想住 房子过大风水怎么解决】
一进门右手边就是卫生间,这似乎也有点坏风水,好在不是正对着入户门,加上卫生间门和墙壁的颜色差不多,所以不注意也很难发现 。

文章插图
卫生间里除了干湿分离,设计布置也还算合理,看起来干净整洁,为了不占空间,连浴室柜都省了 。

文章插图
从卫生间出来对面就是卧室了,这一设计很多人应该都清楚不仅风水不好,而且对人身体也不好 。不过好在设计时抬高了卧室地面,卫生间也安装了门,这样会好点 。

文章插图
卧室里灰色的床铺配上木质吊顶以及地板,看似随意简单,实际上给人一种安静舒适的感觉,这样的睡眠环境是最好的 。

文章插图
厨房就在卧室的隔壁,抛开风水不谈,整体的设计布置还是不错的,橱柜+岛台设计不仅扩大了操作台面,而且动线也很合理,做饭时还是很方便的 。

文章插图
至于餐桌肯定是摆在落地窗旁边了,光线和风景都很好,玻璃餐桌看起来现代时尚,但是清理起来可麻烦了,总感觉擦不干净 。

文章插图
另一边靠墙的位置还设计了简单的小书桌,红色的椅子在家里显得很是亮眼 。

文章插图
- 护甲油是底油还是亮油
- 看《史记》的《刺客列传》发现荆轲可能是剑术最差的刺客,要不秦始皇就是剑术最高的,大家怎么看?
- 艾滋病携带者,女性,按时吃药,目前各方面稳定,想结婚生子。是否还有这个机会?
- 乍然离场是什么意思
- ny牌子很有名吗 ny是什么牌子
- 孕妈大都被医生宣判为“孕酮低”,要求打针或吃药补孕酮,孕酮标准值到底是多少?
- 柚子产地是什么地方 柚子的主要产地
- 大全倩倩是什么电视剧
- 老友记讲的是什么多少集
- 世界上最好的表是什么品牌 世界十大名表品牌排名
特别声明:本站内容均来自网友提供或互联网,仅供参考,请勿用于商业和其他非法用途。如果侵犯了您的权益请与我们联系,我们将在24小时内删除。
