
文章插图
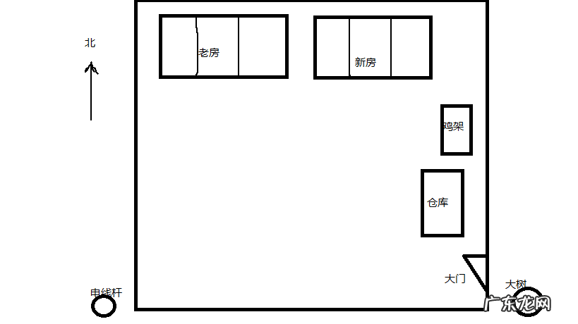
此宅是辽宁省赤峰市农村一农家大院 。院是坐北向南,有老房三间,又建新房三间,在东侧新房的青龙位上有鸡架和仓库 。开的是东南巽门,门口有一株大树 。西南坤方院外有一个电柱 。在85年乙丑年,婆婆被电打死 。事过十二年后,97丁丑年儿媳被雷劈死
宅相分析:此房从门上看,西北老房是祸害凶星飞临,乾宅克巽门不吉,新房前青龙位上有鸡架和仓库,形成青龙拐角之势,也称有东无西,家无老妻 。西南未地水泥电柱为白虎煞,逢丑年冲动白虎大煞,主女主人有血光之灾,结果老太太到儿媳鸡窝偷鸡蛋,被儿子防小偷的电源打死 。12年后又是丑年,儿媳干活回来正逢雷劈倒门口的大树,将儿媳砸死 。古人云:门口有树神,要死当家人 。巽门巽为女,正应女人之灾 。新房居艮位,为绝命之地,是儿子在鸡窝里放的电源,因而进了监狱 。又绝命应凶在巳酉丑之年,两次大灾,皆应在丑年亦是太岁在艮之因
【被雷劈的房子风水如何 房子被雷劈了风水上怎么调整】
- 什么是断头路风水 断头路的房子风水不好
- 房子在火车站旁的风水 房子对着火车站风水
- 住楼房的风水 风水住房子要
- 买几层的房子风水好 楼房几层风水最好
- 把西山的房子风水 西大山的房子风水
- 租房风水的九大注意事项 不要贪便宜租旧屋 老房子会影响风水吗
- 错层的房子风水大忌 错层的房子风水说解
- 男生的情话套路会让女生喜欢吗?
- p2p理财平台排行榜 可靠的理财平台排行榜
- 一个人的北京原唱
特别声明:本站内容均来自网友提供或互联网,仅供参考,请勿用于商业和其他非法用途。如果侵犯了您的权益请与我们联系,我们将在24小时内删除。
