单亲妈妈和8岁女儿住35㎡公寓,室内配色让人赏心悦目,时尚又温馨

文章图片
【单亲妈妈和8岁女儿住35㎡公寓,室内配色让人赏心悦目,时尚又温馨】

文章图片

文章图片

文章图片

文章图片
在现代社会 , 女性角色已经有了根本上的变化 。 以往男主外、女主内的思想已经开始发生改变 , 女人也可以撑起家里的一边天 , 在外能够打工赚钱 , 而在家能够做家务 , 承担整个家庭的责任 。 她们慢慢的越来越变得强大 , 有时候甚至自己带着孩子也可以过得很幸福和快乐 。 本期宅哥带大家走进的是一个单亲妈妈和她8岁女儿的家 , 生活是不容易的 。 但是在这位单亲妈妈的眼里 , 她却并不这么认为 。 她觉得通过自己的努力而获得的都是最幸福的 , 即使是她们两个人也可以过得幸福 。 在她们的身上完全感受不到离异家庭的艰辛 , 反而她们善于从中寻找乐趣 , 享受自己的生活 。 属于她们的小家 , 并不大 , 但是却格外温馨 。
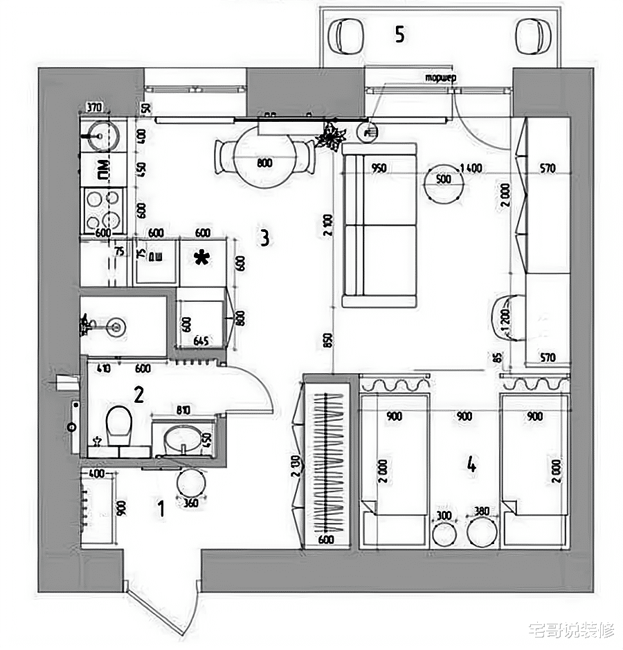
空间布局图
房屋的套内面积是35平方米 , 总体上呈现规则的结构 。 厨房、客厅、卫生间和玄关均设置在整个房屋的左侧位置 , 而右侧是客厅和卧室区 , 另外有一个小的阳台 。 整个的户型居住起来是十分舒适的 , 简约时尚 , 现代大气的装修风格也使整个家装看起来格外的温馨和舒适 。 在整个的家装中 , 善于运用色彩的搭配 , 而营造出一种温馨的氛围感 。 整体上通过几种色调的搭配来打造整个的家中设计 , 这就是善于运用色彩搭配而营造出来的效果 , 也是值得大家借鉴的 。 玄关
一进门处的墙壁是刷了砖红色的硅藻泥 , 这种暗色调的搭配并没有增加整个空间的压迫感 。 而巧妙的运用一些装饰和装点 , 把整个区域打造的时尚又美观耐看 。 椭圆形的穿衣镜看起来精致又实用 , 而且起到装饰墙面的效果 。 靠墙处摆放的美观耐看有设计感的小凳子 , 同时也做一个装饰品 , 方便换鞋 。 三个圆形吊灯不规则排列则很好的凸显了氛围感 。 三角形黑白拼接的墙砖进去也给人一种眼前一亮的感觉 。 玄关右侧一整面墙壁打造为衣柜蓝灰色的柜门精心做了一些装饰和设计 , 实用又美观 。 这个衣柜不仅增加了实用和储物功能 , 并且作为玄关和卧室区的隔断 。
卫生间
卫生间整体打造的比较有设计感 。 白色和砖红色的色彩搭配 , 给人一种大气时尚的感觉 。 洗手池和马桶后面墙壁是白色加黑色线条作为点缀 , 起到很好的装饰效果 。 而下面红色的防水墙砖显得极其有质感 , 再加上洗手台和马桶是白色的 , 这种红白相交硬的设计 , 简约又时尚 。 当把两种颜色搭配到极致的时候 , 就会凸显出整体设计的风格 , 在细节的装点和布置上也十分有讲究 。 长短不一的蓝色吊灯、圆形的镜子以及墙壁上的装饰画都起到了很好的装饰效果 。 另一侧的洗澡区域是干湿分离的设计 , 做了抬高处理和玻璃门 , 同样是运用砖红色的防水墙壁来打造淋浴区 。 外面专门设置了挂钩 , 方便毛巾、浴巾等的挂放 。
特别声明:本站内容均来自网友提供或互联网,仅供参考,请勿用于商业和其他非法用途。如果侵犯了您的权益请与我们联系,我们将在24小时内删除。
