
文章图片

文章图片

文章图片

文章图片

文章图片
今天齐家小灵儿分享的是一套建筑面积143平米的新中式风四居室案例 , 设计师以客厅、餐厅和茶室形成一个公共区域 , 通过各种镂空屏风隔断来划分 ,又用典雅的中式风家具与简洁硬装相融合 , 打造出一个轻奢、大气的家 。
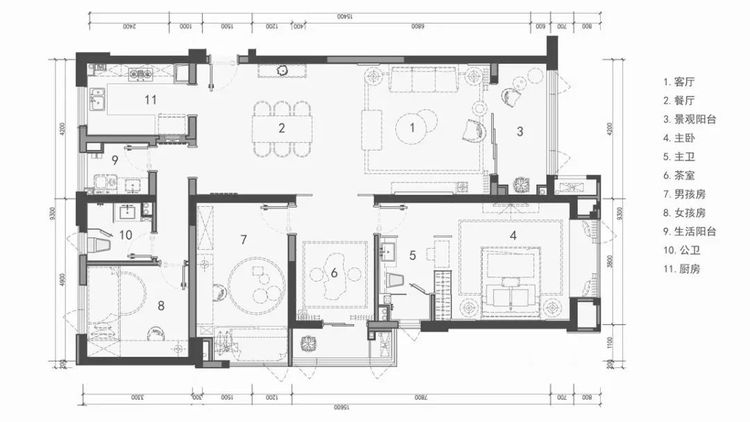
平面布置图
入户没有玄关走廊的户型 , 一进门就是客餐厅 , 两个空间的底部吊顶相连做了略带弧形的跌级吊顶设计 , 加上装饰线条之后显得更有层次感 。
【143平的典雅新中式风四居室,打造一个有档次的家】
客厅的沙发、茶几等家具选择了现代中式风的 , 沙发背景墙上做了灰色的硬包造型 , 两侧的镂空隔断造型 , 和电视背景墙相互呼应 。
没有摆放电视的客厅 , 而是用两幅装饰画作为点缀 , 创意的图画搭配简洁的电视柜、装饰高台和盆景 , 显得非常儒雅 。
从一个圆形隔断孔中看往餐厅 , 这样的拍照效果很有典雅的气息 , 山水挂画装饰和精致的餐具 , 红白灰相间的色彩 , 显得格外的端庄、大气 。
茶室内的布置非常有中式风的感觉 , 窗帘、蒲团和茶席 , 让人感觉坐在这里泡茶 , 仿佛回到了古代 , 三五好友谈诗品茶 。
卧室的床头背景墙和沙发背景墙一样 , 用了对称的布局设计 , 中间皮革软包搭配两侧的镂空屏风 , 还有两侧床头柜上的台灯 , 无一不是中式风的感觉 。
卧室的一侧做了个胡桃木飘窗+坐垫的设计 , 在飘窗上还摆放了小茶盘 , 搭配着这些高床软枕的软装布置 , 看起来特别舒适 。
就连卫生间里也是在各种方面展现着中式的感觉 , 两侧的镂空隔断和洗手台上的干花摆设 , 在大理石硬装的衬托下 , 显得更为典雅 。
其实小灵儿觉得展现中式风的美感 , 应该由细节上去体现 , 就比如这样一个小铜锁 , 就能让人立刻想到中式风 , 这就是独有的元素 。
齐家小灵儿提供更多装修资讯 , 喜欢我的朋友记得收藏和关注哦!
(素材来源于网络 , 无法核实真实出处 , 如有侵权 , 请直接联系齐家小编删除 。 谢谢!)
特别声明:本站内容均来自网友提供或互联网,仅供参考,请勿用于商业和其他非法用途。如果侵犯了您的权益请与我们联系,我们将在24小时内删除。
