挑战全网3款最受欢迎户型!设计统一大气,最重要的是实用

文章图片

文章图片

文章图片

文章图片

文章图片

文章图片

文章图片

文章图片

文章图片

今天给大家盘点一波全网最火的欧式别墅图纸 , 非常实用 , 设计统一大气 。 我敢说建这样一套房 , 村里90%都在夸!
图纸编号:zzxgf297
别墅层数: 二层
别墅风格: 欧式
占地面积:97㎡
建筑面积:212.67㎡
预估造价:34.0万
建筑结构:砖混结构
建筑占地:11.8m×8.3m
功能间:杂物间 书房
平 面 图
这套别墅开间11.8m、进深:8.3m、内含全套施工图纸 , 4室2厅4卫 , 布局精湛、极其适合广大农村建房者们修建 。
图纸编号:zzn0820
别墅层数: 二层
别墅风格: 欧式
占地面积:146㎡
建筑面积:285㎡
预估造价:45.6万
建筑结构:砖混结构
建筑占地:13.2m×11.1m
功能间:露台 书房 娱乐室
这是一套二层农村自建别墅 , 欧式风格 , 常见的砖混结构 , 开间13.2m , 进深11.1m 。
别墅一层使用灰色文化石装饰墙面 , 二层使用浅浅灰色来搭配 , 屋顶和屋檐使用深灰色的坡屋顶设计 , 坡屋顶避免了雨雪天屋顶积水 , 对屋顶造成腐蚀损伤 。
平 面 图
【挑战全网3款最受欢迎户型!设计统一大气,最重要的是实用】一层设计了两个卧室 , 一个老人房一个儿童房 , 两个卧室中间设计了一个卫生间 。 餐厅旁是厨房 , 在楼梯旁 。 客厅在玄关左边进来 , 空间很大 。
二层设计了两个卧室 , 分别在左边上和右上角 , 左边的卧室设计了一个主卫和一个书房 。 右边的卧室一样 。 楼梯上来是娱乐室 。
门口进门设计了台阶扶手 , 为进门增加了仪式感 。 大门是红色的 , 沉稳庄重 。 窗户设计的很多且很大 , 采光效果和通风效果都很好 。
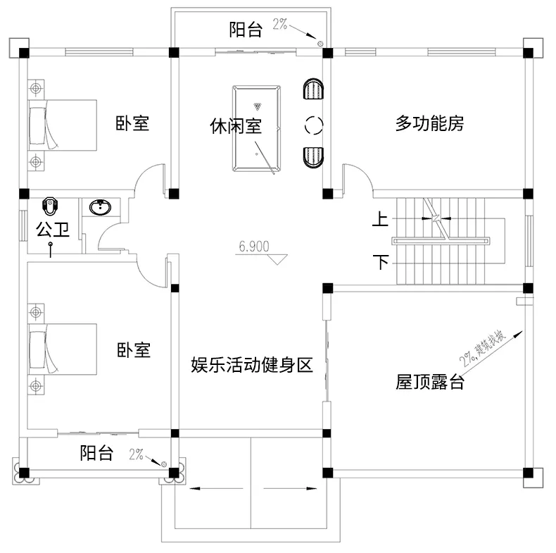
图纸编号:zzxgf593
别墅层数: 三层
别墅风格: 欧式
占地面积:210㎡
建筑面积:520㎡
预估造价:83.0万
建筑结构:其他结构
建筑占地:15m×14m
功能间:杂物间 露台 衣帽间
这款别墅风格为欧式建筑 , 低调美观 , 外墙采用米色涂料与蓝色屋顶完美结合 , 非常柔和的色彩搭配 。 给人的感觉低调奢华有内涵 , 门庭的方形柱子非常协调、统一、大气 。
特别声明:本站内容均来自网友提供或互联网,仅供参考,请勿用于商业和其他非法用途。如果侵犯了您的权益请与我们联系,我们将在24小时内删除。
