
文章图片

文章图片

文章图片

文章图片

文章图片
今天分享的是一套建筑面积125平米的现代简约风三居室案例 , 设计师以复古的绿色搭配大理石、黄铜元素 , 来营造出一种文艺、轻奢的格调感 。 齐家小菜很喜欢这套案例当中的主卧室的床头背景墙 , 迷雾森林加上壁灯 , 让人感觉非常好看 。
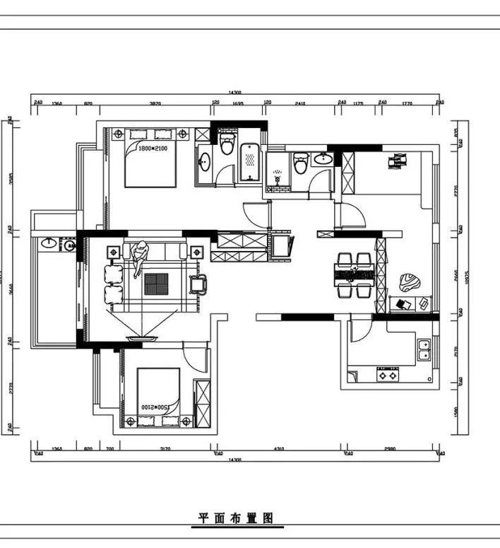
平面布置图
入户门对着墙面 , 设计师在这做了端景台加鞋柜的组合式设计 , 白色的柜子搭配黑色的搁架 , 再加上多彩的绿植图画 , 让人感觉很有格调 。
位于入户门一侧的是客厅空间 , 客厅的电视背景墙做了满墙的定制柜设计 , 电视周边的空间选择了黑色调 , 让电视背景墙的层次更为分明 。
而沙发背景墙是延续了整体的复古绿色 , 皮质的沙发搭配大理石加金属的茶几 , 一个多彩的脚凳作为点缀 , 整个客厅的元素丰富却又不杂乱 。
餐厅和厨房空间位于入户门的另一侧 , 两者之间用玻璃推拉门作为隔断 。 餐桌椅也是大理石加金属的款式 , 软包的布艺坐垫让人感觉更舒适 , 墙面还做了镜子扩大空间视觉感 。
厨房内部的空间还是比较宽敞的 , U字形的橱柜布局方案带来更短的厨房动线 , 也拥有更多的储物空间 , 橱柜转角做了弧形搁架的设计 , 既安全又实用 。
主卧室的床头背景墙是铺贴了迷雾森林图案的壁纸 , 两侧对称的壁灯也给卧室增色不少 。 卧室内的飘窗加上了抽屉柜 , 让储物空间更为充足 。
主卧室内的卧室和卧室之间选择了用玻璃加半墙作为隔断 , 通透的设计让空间更显宽敞 。 灰色调的大理石和白色的浴室柜结合 , 带来简洁大方的感觉 。
次卧也被作为一个工作区来使用 , 设计师在靠窗的位置做上了长书桌 , 榻榻米加上衣柜的组合式设计 , 让空间被有效的利用起来 。
在次卧内还有一个迷你的阳台空间 , 屋主在这里摆放一个复古的休闲桌椅 , 搭配侧方的到顶储物柜 , 偶尔在这里晒晒太阳、看看书 , 想必也是非常惬意的事情 。
【125平的现代简约风三居室,好喜欢卧室的床头背景墙】齐家栗子提供更多装修资讯 , 喜欢的朋友记得收藏和关注哦!图片来源网络:侵权联系删除
特别声明:本站内容均来自网友提供或互联网,仅供参考,请勿用于商业和其他非法用途。如果侵犯了您的权益请与我们联系,我们将在24小时内删除。
