坚持不吊顶,全屋只刷乳胶漆,完工效果也漂亮,就等搬家了
----坚持不吊顶 , 全屋只刷乳胶漆 , 完工效果也漂亮 , 就等搬家了//----
----坚持不吊顶 , 全屋只刷乳胶漆 , 完工效果也漂亮 , 就等搬家了//----
----坚持不吊顶 , 全屋只刷乳胶漆 , 完工效果也漂亮 , 就等搬家了//----
----坚持不吊顶 , 全屋只刷乳胶漆 , 完工效果也漂亮 , 就等搬家了//----
----坚持不吊顶 , 全屋只刷乳胶漆 , 完工效果也漂亮 , 就等搬家了//----
"multi_version":false
新房从买房的时候就决定要简装 , 一是因为两个月的看帖学习说简装后期软装比较好搭配 , 二是现在都流行简约的北欧风格 , 最后一个原因就比较现实了 , 没那么多钱砸来装修 。 最后确定的装修方案是全屋不做吊顶 , 不做造型 , 墙面只刷乳胶漆 , 网上的小姐姐们果然没骗人 , 这样的简装效果上齐家具也漂亮 , 不到8万块的装修自己都觉得花了十几万 , 坐等晾味搬家了!
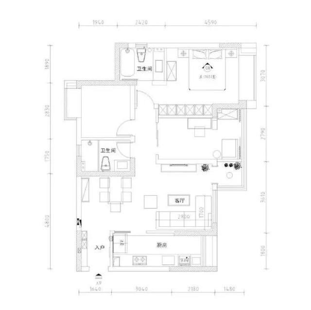
平面图先放上 , 108㎡ 的小三居 , 空出的小卧室现在闲置了 , 以后有了娃可以直接打造成儿童房 , 这也是两年后的事情了 。
玄关过道还是比较长的 , 侧面留出了玄关柜的空间 , 直接是定制的上下鞋帽柜 , 靠近门口的位置为了避免入户的拥挤 , 装的是双层的换鞋凳 , 底下也可以置物 , 背景板还能用来挂衣服 。
玄关进来就是餐客厅 , 面积虽然不大 , 但是采光是真的不错 , 尤其顶面没有装吊顶 , 层高一点都没有被占用 , 圈上一圈的石膏线 , 搭配美式简约款的餐桌椅 , 优雅又温馨 。
餐厅没有装背景墙 , 连餐边柜都省了 , 直接买的一组斗柜当做收纳柜 。 从餐厅看过去客厅 , 电视墙直接是天蓝色的乳胶漆墙面 , 电视直接挂在墙上 , 下面摆上一组和餐桌椅配套的电视柜 , 也是很显档次的 。
如果你家要装修 , 不知道选什么风格 , 该怎么装修 , 推荐给你下面这22种风格装修效果图 , 9万张高清实景案例图片 , 帮你省去设计费用!
这个是客厅的整体效果 , 带着的阳台墙面也没有全部砸掉 , 不光有大大的玻璃窗 , 还特意留了一个垭口通往阳台 , 成为一个独立的休闲小花园 。
虽然全屋都是刷乳胶漆 , 不过也是调整了配色的 , 客厅刷成天蓝色 , 餐厅的墙面则是嫩绿色 , 整个屋子都显得清新优雅 , 看上去颜值高了许多 。
厨房是长条形的空间 , 地面都是铺贴的黑白灰的六边砖 , 直接装的一字型的整体橱柜 , 白色的橱柜配上白色的墙砖 , 小空间也很透亮 , 加上窗户的采光和玻璃推拉门引入的自然光线 , 厨房还是很宽敞的 。
特别声明:本站内容均来自网友提供或互联网,仅供参考,请勿用于商业和其他非法用途。如果侵犯了您的权益请与我们联系,我们将在24小时内删除。
