本文介绍的案例位于龙源世纪龙城,业主是第一次装修,房屋总面积115.98平米,考虑到生活需求,业主将115.98平米的房子装修成三居室 。业主钟爱北欧风格,所以房子整个装修风格都是采用的北欧 。业主透露本套115.98平米的房子全包装修只花了10万 。一起来看看效果图吧!
装修公司:河南新思路装饰工程有限公司预算:10万风格:北欧案例套数:239更多
设计师首先在户型上去除了一些非承载墙体,开放式的功能区极大地开阔视觉、改善了采光!在施工选材和后期软装上,以灰、粉、白三色为主搭配,加上跳跃的色彩来辅助;成品实景中,每一个角落都有时尚流行INS风的元素,却又不失烟火气息!
客厅是一个家的中心,也是一家人活动最密集的场所,因此客厅装修不光要光鲜亮丽,还要满足日常的生活需求 。

文章插图
利用暖色来打造清新温暖北欧风,将这两组即优雅又舒适的色彩搭配用到极致!

文章插图
硬装少而精,软装后期丰富整个空间,让房子生动起来
卧室的装修并非只是摆设一张床这么简单的事情,在卧室装修中,有很多需要注意的地方 。现在的卧室,室内功能越来越完善,舒适度也越来越高,基本可以满足主人的任何生活需求 。

文章插图
我们应该懂得如何在平凡里寻找快乐 。正如生活,大都是平淡,但是细细回想,就会发现平淡中隐藏着太多的快乐和幸福

文章插图
儿童房色调丰富多彩,为孩子创造一个活泼跳跃的空间 。
布局合理的卫生间应当有干燥区和非干燥区之分 。非干燥区不利于储物,即使是干燥区,卫生纸、毛巾、浴巾等如果长期放置,也一定要用隔湿性好的塑料箱存放,避免受潮,要保证它们拿出来使用时没有水气 。

文章插图
加入一些跳色的元素,打造出来的视觉感就不会让人觉得冷淡,反而是温暖和可爱 。
餐厅的装修要注意色彩,色彩要温馨一些,能够增加人的食欲 。餐厅的色彩适合用明郎轻快的色调,一些橙色系列的颜色给人一种温馨的感觉,也能够让促进人的食欲 。

文章插图
拥有自己的一套房,足以满足自己所有温暖的梦想

文章插图
在追求美的同时,创造烟火气息的生活;
厨房设计很重要,想要做饭不累就要厨房的设计合理,其实小编是不建议大家买整体厨房的橱柜 。因为每个人的身高不一样,我们工作的台面高度也不一样,所以动线很重要!

文章插图
简约,质朴,自然,素雅的空间氛围,给予人心境的安定感 。
明亮、鲜艳的颜色有助于小孩保持愉快的心情,千万不能用阴气沉沉的色调,在儿童房色彩的搭配时可以遵从孩子的意见以他喜爱的颜色为主调 。

文章插图
儿童房色调丰富多彩,为孩子创造一个活泼跳跃的空间 。
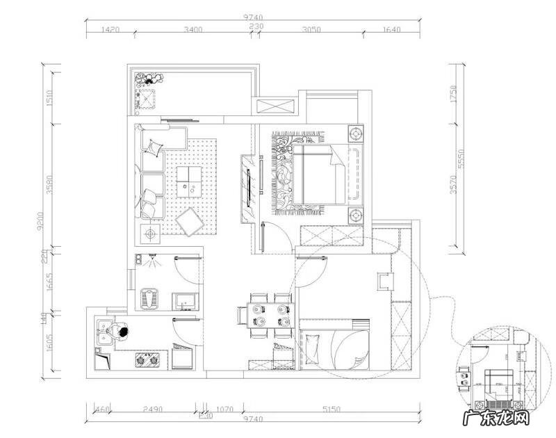
以下就是本套龙源世纪龙城小区115.98平米三居室房子的户型图 。

文章插图
- 儿童早教插图易经风水
- 茶杯茶盏 茶壶 风水
- 中国风水门派 风水江湖行话
- 普陀山风水解说 普陀山的风水
- 刘衍奎风水大师 邹水准风水点穴
- 写字桌摆放风水 书桌形状风水
- 工厂风水图解大全 工厂风水知识
- 风水宝地图解 图书馆哪个位置风水好
- 崔氏家族群 崔氏家族风水
- 中国现代有名的风水建筑 关于中国风水
特别声明:本站内容均来自网友提供或互联网,仅供参考,请勿用于商业和其他非法用途。如果侵犯了您的权益请与我们联系,我们将在24小时内删除。
