
文章插图
河北廊坊王家三合院建设地点河北廊坊
图纸编号1003
尺 寸面宽25.5米 进深21.7米
建筑面积284.0㎡
设计机构易盖房钱帅工作室
土建造价51.0万
项目概况

文章插图
△总平面示意图
基地情况:
东:邻家住宅 西:邻家住宅
南:村内道路 北:村内道路
项目简介:
业主在项目前提提出需要两进院的建筑,形式设计为三合院 。对于功能方面,厢房保留功能布局,后期业主可根据实际需求进行调整 。正房布置三间卧室,配合客、餐、厨组成整体空间 。
平面布局
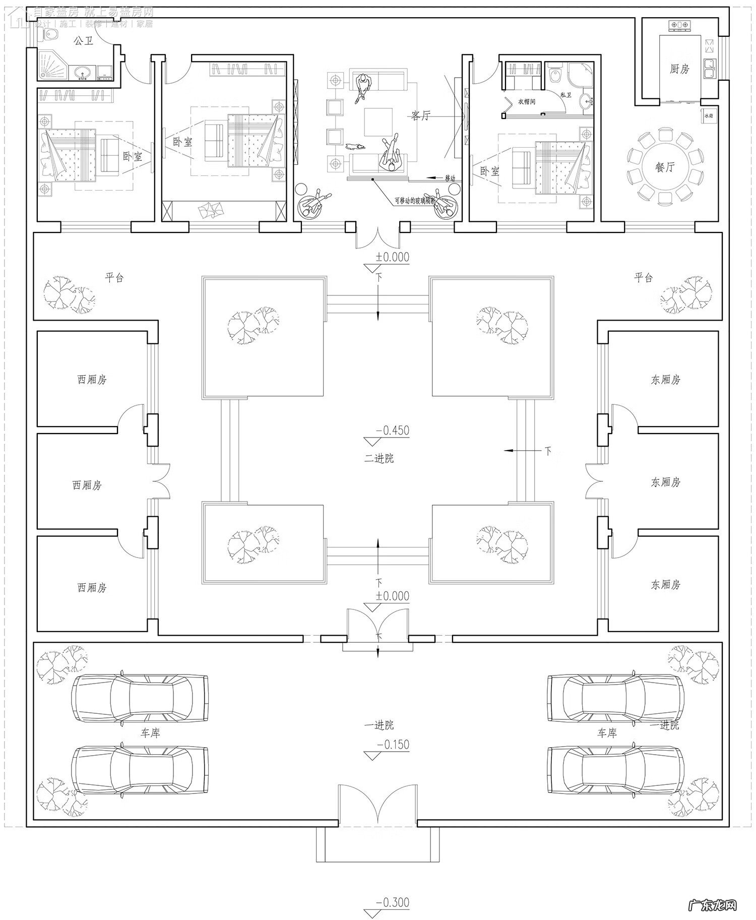
户型概况:1层 / 3室 2厅 2卫 1厨 1衣帽 6房间

文章插图
△一层平面图
一进院作为停车空间,二进院为居住区域,明确地功能划分使得二进院环境更适宜居住 。
东、西厢房各保留三间房间,业主可根据实际需求进行功能布置 。
正房将交通流线放在北侧,使得主要房间均有南向采光 。客厅位置布置一个小型玄关,让室内外有所缓冲,同时玻璃隔断的使用不会影响后方空间的采光 。细节处理为业主及其家人提供品质生活 。
造型设计

文章插图
△鸟瞰图
建筑整体为新中式风格,粉墙黛瓦的造型配合三合院布局将建筑的韵味表达出来 。

文章插图
△鸟瞰图
建筑大门与二进院的院门选择不同造型,体现出不同层级间的关系,使得建筑主次分明 。

文章插图
△鸟瞰图

文章插图
△鸟瞰图
考虑到项目地理位置,车库选择玻璃顶,类似阳光房的空间相比封闭车库更加开阔,使用感受更好 。

文章插图
△鸟瞰图

文章插图
△南侧效果图
院墙开有扇形墙窗,极具中式韵味的墙窗在外部展现出建筑的韵味和美感 。院门跨度较大,使用便利的同时将空间的大气展现得淋漓尽致 。

文章插图
△庭院效果图
门后影壁解决了院门后方空间私密性的问题 。四个角落的绿化区域根据风水测算栽种不同种类的绿植,寓意极好 。

文章插图
△庭院效果图

文章插图
△东立面图

文章插图
△西立面图

文章插图
△南立面图

文章插图
【农村修三合院的房子 农村建三合院的风水图】△北立面图
- 修改淘宝账号名 淘宝用户名如何修改
- 拉链头坏了怎么修理小妙招 拉链头坏了如何修理图片
- 艾沐宠物沐浴露怎么样 小宠益修肤宠物沐浴露怎么样好用吗
- 农村创业做什么最适合 做什么生意好
- 广州手机维修培训学校 广州电脑手机维修培训
- 装修别忽略了阳台,抬高地面做储物柜,又能多挤出5收纳!
- 农村房屋中堂禁忌 农村堂屋门必须在中间吗
- 吉祥阁风水 太吉堂风水
- 广州汽车维修培训中心 广州汽车维修专业学校
- 淘宝新开店铺怎么装修店铺?如何操作?
特别声明:本站内容均来自网友提供或互联网,仅供参考,请勿用于商业和其他非法用途。如果侵犯了您的权益请与我们联系,我们将在24小时内删除。
