楼下商铺楼上自住的四层复式别墅,带柴火房影视厅,适合农村自建
----楼下商铺楼上自住的四层复式别墅 , 带柴火房影视厅 , 适合农村自建//----
----楼下商铺楼上自住的四层复式别墅 , 带柴火房影视厅 , 适合农村自建//----
----楼下商铺楼上自住的四层复式别墅 , 带柴火房影视厅 , 适合农村自建//----
----楼下商铺楼上自住的四层复式别墅 , 带柴火房影视厅 , 适合农村自建//----
"multi_version":false
愿你眉眼温润 , 眼中有星河 , 心中有诗和远方;
愿你鲜衣怒马 , 一日看尽长安花 , 历尽山河万里 , 出走半生 , 归来仍是少年 。
极其个性的欧式风外观 , 富有艺术性的配色处理 , 搭配坡屋顶 , 让人忍不住被其吸引 。
大面积的钢化玻璃装饰 , 不仅强化了设计感 , 室内采光通风极佳 , 而且安全性好 。
加上层层错落阳台及露台 , 生出一种参差美感 。 立面造型更加连贯 , 设计感十足 。 墙色采用复古的棕黄色 , 整体显得很内敛但其精致的墙体浮雕表示出它的不一般!
基本信息
别墅编号:SF190923C
占地尺寸:27.00x14.30米
占地面积:327平方米
建筑面积:818平方米
结构类型:框架结构
主体造价:80-100万左右
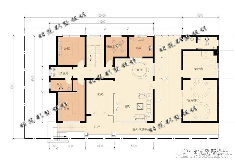
楼下主要为车库和商铺 , 楼上二层为主人和家人居住生活空间 , 二层设柴火灶适合农村使用 , 设厨房 , 餐厅 , 门厅玄关 , 客厅 , 棋牌室 , 两间卧室 , 休息的日子 , 邻居朋友来到家中 , 可以坐在客厅看看电视 , 聊聊天 , 去棋牌室娱乐休闲 , 大家都是一脸的喜气洋洋 。
三层设衣帽间、三间卧室、两间卫生间、一个书房 , 一个阳台 。
二层为主要的休息区 , 布置三间卧室 , 均带采光 , 居住的舒适度毋庸置疑 。
一个大客厅供以会客和家人休闲娱乐 。 一层的客厅上方做了挑空设计 , 加大了整体的视觉效果 , 保证屋内阳光充足与通风稳定 , 非常高端大气上档次 , 设有书房 , 在一隅安静的角落学习工作 , 时光未央 , 岁月静好 。 。
朝南阳台方便晾晒家中衣物 , 也可以开阔视野 , 作为观景平台使用 。
四层设两间卧室、一间影音室 , 两个卫生间、一个大露台 。
业主是一位极其注重生活品味的人 , 设影视厅和健身区!
大露台非常实用 , 方便家中晾晒 , 另外还能作室外休闲场地使用 , 如若有闲情逸致还能种些花花草草 , 打造一处露台花园 。 为室外休闲提供更多可能 , 放上一组户外沙发 , 栽花种草、饲鱼喝茶 , 好不惬意!
特别声明:本站内容均来自网友提供或互联网,仅供参考,请勿用于商业和其他非法用途。如果侵犯了您的权益请与我们联系,我们将在24小时内删除。
