
文章图片

文章图片

文章图片

文章图片

文章图片

文章图片

文章图片

文章图片

文章图片

文章图片

文章图片
平平淡淡才是真 , 住宅对于大多数人而言 , 并非要多么高级的审美取向 。 但是有了一定的审美能力后 , 就算是同样的体量、同样的面积 , 同样的建筑形式 , 依然能通过自身的审美素养 , 去调节关于比例、空间光影、材质的运用 , 更重要的是发现朴素之下美的能力 。 明白空间并不只是居住的机器 , 唯功能论的想法早就不符合当下的现代生活方式 , 如何通过空间的打造 , 将人、建筑和自然环境融合在一起 , 打造一个舒适的家居空间才是住宅需要关注的重点 。 今天小编就要给大家介绍一个单层体量的朴素乡间住宅 , 看它是如何利用田野风光来构筑舒适的生活空间的 。
建筑外观
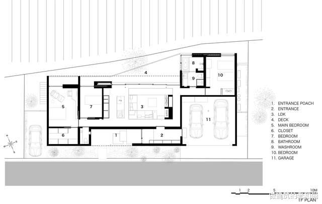
该项目位于日本的筑波乡下 , 地块跟我们常见的乡村地块并没有过多的区别 , 临近道路 , 另一侧便是绿油油的稻田 。 是不是觉得似曾相识 , 跟我们很多乡村省道旁边的地块特别相似 。 但是不同的是 , 我们这边很多乡村住宅都是以多层体量示人 , 内部对于空间光线的获取、空间与外部环境的融合 , 似乎都被忽略 。 多余的房间随处可见 , 更不用说退让出空间作为景观和过度使用了 。 而这个住宅尽管面积有限 , 而且就在道路边上 , 却依然从空间的角度出发 , 从空间使用的有效性出发设计 。
稻田看向建筑
建筑外观
建筑入口
入口台阶
入口夜景图
入户玄关
客厅
由于与道路的距离较近 , 道路上来往的车辆势必会对建筑内部有所影响 , 为了将这种噪音的影响降到最低 , 建筑以一种几乎完全封闭的姿态展示给外部的公共空间 。 除了可以有效地缓解外部的噪音干扰 , 还能极大地保证内部空间的私密性 。 建筑除了立面的封闭式处理外 , 与道路之间还设置了一定空间的植物景观 , 一方面可以将这种立面的封闭性得到柔和的过渡 , 另一方面能将噪音干扰的削弱进一步加强 。
特别声明:本站内容均来自网友提供或互联网,仅供参考,请勿用于商业和其他非法用途。如果侵犯了您的权益请与我们联系,我们将在24小时内删除。
