见缝插针式储物,这个家的超强收纳太能打
对于重度囤货党来说,一个家能乱到什么程度?在见到Vivian的家之前,我从来没考虑过这个问题。这个家在改造之前,只能用“杂物间”来形容,而且东西都摆放在外面,让人无从下手。可以这么说,目之所及全是物品。在看到Vivian拿出囤积的放着香水的几个大快递盒子之后,在我眼中,从她身上立刻飘出了明晃晃的醒目tag:囤货党。那么这个家最大的痛点也随之而来:储物空间严重严重严重不足。请允许我连用三个严重来表达这个问题的重要性,因此设计的第一要务就是解决收纳需求。
· 户型图

文章插图
原户型一楼

文章插图
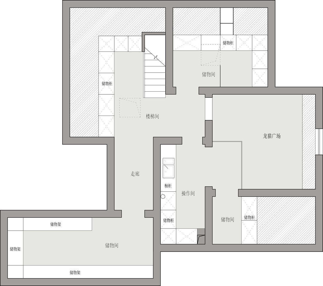
原户型二楼好在比较幸运的是,原户型为两层,第二层是阁楼,有足够的地方做储物空间。日常家中常住人口两个人,Vivian和小女儿。另外还有两只狗狗和一群龙猫,是家中的吉祥物,除了考虑人的居住习惯,还要方便狗狗的日常活动和龙猫的居住区域。另外原户型中客厅比较小,一侧墙面有一扇通往露台的门,放普通的餐桌会影响行走动线。通往二楼的楼梯在一个卧室之内,上下楼很不方便,因此楼梯位置也要改。

文章插图
说砸就砸。楼梯整个打掉,用钢架和水泥整体浇筑了新楼梯;封闭厨房打掉部分墙做成半开放式;原来的主卧和主卫打通;玄关出墙内推。改造后平面图门厅处借干区的一小部分做通顶玄关柜。厨房半开放式与客厅吧台联通,靠近新楼梯的位置延伸出吧台做另一处餐桌。主卧反传统地,并没有选择靠墙,而是在床头留出通往衣帽间和主卫的行走空间,形成环形动线,让主卧、衣帽间和主卫连通成整体私密空间。主次卧各开一扇门通往半圆的休闲区,女儿回家住的时候,休闲区就是母女亲睦的共用空间。

文章插图
二楼承担了绝大部分的收纳压力,一整层都变成了储藏室,还开辟出了龙猫们专用的小广场。因为二层阁楼的缘故,免不了有部分地方层高过低或是斜面,柜子也是见缝插针,除去图上斜线出实在利用不上的地方,其他空间都做了尺寸定制的储物柜和储物架。为了方便给小龙猫准备食物换水,二层阁楼额外安装了洗手盆。
· 玄关

文章插图
玄关是定制柜+穿衣镜的组合,下方悬空方便放穿鞋凳、拖鞋和扫地机器人等,灯带是感应式的,入户即亮。隐藏把手让柜子看起来有浑然一体的简洁。

文章插图
因为家有狗狗,一到换季就容易狗毛遍地飘。为了方便打理,整屋摒弃娇贵的地板,通铺磨砂质地的地砖易清扫且不容易显脏。顺便偷偷说一句,玄关旁这副“圆润版”的蒙娜丽莎挂画,是特意为业主选择的,与业主本人神似(皮一下很开心
· 客厅

文章插图
客厅面积不大,且因为换了楼梯位置无法做传统的背景墙。天花板吊顶安装电动幕布,投影仪一样可以拥有家庭影院。墙面石膏线与天花板造型营造了轻盈洁净的法式情调,奶油色墙面+丝绒质感的墨绿色沙发不乏精致感。
特别声明:本站内容均来自网友提供或互联网,仅供参考,请勿用于商业和其他非法用途。如果侵犯了您的权益请与我们联系,我们将在24小时内删除。
