458㎡新中式别墅,最美中式庭院,第一眼就足够让你惊艳!
----458㎡新中式别墅 , 最美中式庭院 , 第一眼就足够让你惊艳!//----
----458㎡新中式别墅 , 最美中式庭院 , 第一眼就足够让你惊艳!//----
----458㎡新中式别墅 , 最美中式庭院 , 第一眼就足够让你惊艳!//----
----458㎡新中式别墅 , 最美中式庭院 , 第一眼就足够让你惊艳!//----
----458㎡新中式别墅 , 最美中式庭院 , 第一眼就足够让你惊艳!//----
----458㎡新中式别墅 , 最美中式庭院 , 第一眼就足够让你惊艳!//----
----458㎡新中式别墅 , 最美中式庭院 , 第一眼就足够让你惊艳!//----
"multi_version":false
在欧式法式小洋房横行天下的今天 , 自建一套新中式别墅 , 可能会让你更与众不同 。
且中式别墅 , 是公认最适合中国人居住的别墅 , 与其在小洋房里随波逐流 , 不妨自建一套新中式别墅!
本案新中式别墅项目 , 位于浙江 。 该宅基地 , 东侧为道路 , 西南两侧相邻邻居 , 北侧是小路 。 由于宅基地问题 , 所以建筑的南面采光条件较差 。
由于南面采光有限 , 所以平面布局呈现出凹凸有致的居室 , 让南侧的每一间房间都能拥有良好采光 。
入户玄关正对庭院 , 可直接观赏到庭院内的宜人风景 。 客餐厅被设计在了玄关两侧 , 室内用餐环境极佳 。
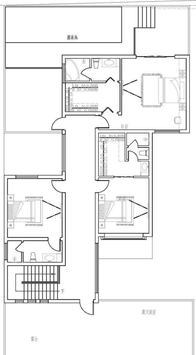
二层平面布局功能 , 主要为器具空间 。 南侧设置了露台 , 是露天聚会烧烤和观景的好地方 。 二层总共设计了三件卧室 , 其中北侧卧室可以直接通往庭院内的游泳池 , 简直秒杀欧式小别墅 。
在建筑风格上 , 本案设计锁定为新中式之风 。 立面上以白墙黛瓦为主调 , 白墙素雅 , 搭配灰色的青瓦屋顶 , 让整栋别墅有层次分明的中式之风 , 搭配庭院设计 , 整体视觉达到顶尖 。
特别声明:本站内容均来自网友提供或互联网,仅供参考,请勿用于商业和其他非法用途。如果侵犯了您的权益请与我们联系,我们将在24小时内删除。
