海归男主的独居室,满足业主当前的生活需求,又预留可变化空间

文章图片

文章图片

文章图片

文章图片

文章图片

文章图片

文章图片

文章图片

文章图片

文章图片
房屋的业主是一个在科技公司就职的海归男士 , 业主和我们沟通的时候就说明了目前这个房子是业主自己一个人居住 , 但也需要考虑到以后的生活 , 最好是可以满足当前的生活需求 , 又可以预留可变化的空间 , 方便以后的起居生活 。
海归男主的独居室 , 满足业主当前的生活需求 , 又预留可变化空间
房屋户型:四室
房屋面积:1342平方米
装修预算:50万
所在城市:深圳
设计师:王安安
主要建材:线板、木皮、喷漆、大理石、黑铁漆、铁件、玻璃、木地板、壁纸
这个房子位于深圳的南山区 , 周围的绿化环境和交通都很好 , 属于很受欢迎的一个小区 , 基本上能够在这个小区买房子的都是比较出色的人 。
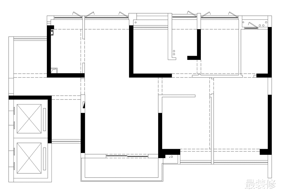
根据业主的需求 , 设计师对这个房子进行了重新布局和规划 , 进行了合理的动静分区 , 满足了日常的生活需求 , 同时为以后的生活预留了足够的改动空间 , 方便业主根据生活需求做出调整 。
【玄关】
设计亮点:一分为三
家里选择了日式的装修风格 , 同时兼顾了日式风格的优点和业主自己的生活习惯 , 打造了一个更适合中国人居住的空间 。
玄关的位置一分为三 , 不仅有基础的换鞋区 , 还有收纳区和小景观的区域 , 充分满足了生活需求 。
【厨房】
设计亮点:全采光设计
业主平时自己一个人在家 , 基本不会使用厨房炒菜做饭 , 但考虑到以后的生活 , 厨房里面的布置还是很细致的 , 完全可以满足日常的生活需求 , 而且厨房选择了全采光的设计 , 视野更加开阔 。
【餐厅】
设计亮点:窗边吧台
业主也是一个很会享受生活的人 , 除了基本的餐桌以外还准备了一个窗边吧台 , 平时可以自己坐在窗边喝着咖啡看风景 , 也是一种享受 。
餐厅的采光也很好 , 不用多余的布置就可以很有设计感 , 独特的吊灯加上淡雅的壁画 , 装点出了一个舒适的用餐空间 。
特别声明:本站内容均来自网友提供或互联网,仅供参考,请勿用于商业和其他非法用途。如果侵犯了您的权益请与我们联系,我们将在24小时内删除。
