
文章图片

文章图片

文章图片

文章图片

文章图片

文章图片

文章图片

文章图片

文章图片

业主是两个远离家乡在外拼搏的年轻人 , 因为日常工作非常忙碌 , 所以一开始只是住房居住 , 但是在忙碌过后回到狭小空旷的出租屋里 , 内心却感觉无比的孤单 。 所以在打拼几年后在杭州用自己的积蓄买了一套房子 , 希望能在这里扎根 , 过上舒服又简单的日子 。
90后青年的第一个家 , 在外也能有个自己的小窝 , 生活充满了动力
房屋户型:两室
房屋面积:79平方米
装修预算:20万
所在城市:四川 成都
设计师:李文伟
主要建材:线板、木皮、喷漆、大理石、黑铁漆、铁件、玻璃、木地板、壁纸
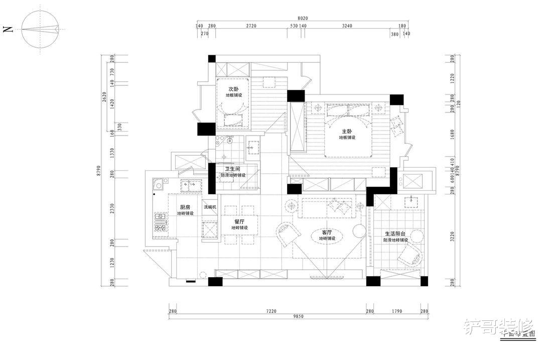
【户型图】
房屋虽然只有79平方米 , 但是户型比较周正 , 给了设计师比较大的改造空间 。 原始的卫生间和厨房的面积都比较小 , 又因为女主平时比较喜欢在家中烹饪 , 所以设计师在厨房的改造上花费了比较多的时间 , 力求为业主打造一个舒适宽敞的烹饪空间 。
【客厅】
设计重点:清新配色渲染空间的年轻和活泼
客厅主要以清新的淡粉色和橘色为主 , 凸显出年轻人的活泼和动力 。 虽然空间面积比较小 , 但是搭配大面积的落地窗 , 客厅更多了温暖的氛围 。
电视背景墙的白色文化砖简约又大方 , 搭配一侧的暖白色置物架 , 让空间更多了现代的时尚感 。 因为家里日常只有两个人 , 所以除了必要的家具没有多余的陈设 , 这样可以大大的节省空间 , 不会造成空间的压抑和拥堵 。
【厨房】
设计重点:玻璃移门宽敞又明亮
厨房是女主人最喜欢的空间 , 设计师利用厨房的墙面走向定制橱柜 , 不仅可以满足业主日常的储物需求 。
干净的桃木色搭配清新的瓷砖 , 让空间更加干练简洁 , 用玻璃移门做隔断 , 这样油烟不会跑出来 , 也能在视觉上保证宽敞明亮 。
【餐厅】
设计重点:简约不失实用感
餐厅位于客厅和厨房之间 , 合理的布局方便业主随意走动 。 简单的木质桌椅非常的轻便 , 还可以根据需求随意移动位置 , 日常招待朋友也不用担心没有地方 。
特别声明:本站内容均来自网友提供或互联网,仅供参考,请勿用于商业和其他非法用途。如果侵犯了您的权益请与我们联系,我们将在24小时内删除。
